豆豆网

 找回密码
 立即注册

QQ登录

只需一步,快速开始

查看: 3114|回复: 0

一份25层花园住宅楼给排水CAD施工图纸

[复制链接]

0

主题

0

帖子

1075

积分

超级版主

Rank: 8Rank: 8

积分
1075
发表于 2020-2-17 21:16:08 | 显示全部楼层 |阅读模式

该帖子包含附件可供参考学习和下载,您可以 搜索 更多您想要的资源


  • 附件设计说明:有
  • 建筑类别:住宅
  • 建筑高度类型:高层建筑
  • 建筑地上层数:25层
  • 建筑地下层数:1层
  • 图纸设计深度:施工图
  • 参考图纸:18张
  • 设计年代:近代
  • 生活供水设计:生活给水系统
  • 排水设计:污水系统,废水系统,雨水系统
  • 消防设计:室外消火栓系统,室内消火栓系统,喷淋系统,气体灭火系统
  • 供水方式:市政供水
  • 排水技术:重力排水
  • 消火栓用水量室外(L/S):15
  • 消火栓用水量室内(L/S):20
  • 项目所在地:广东

附件详情

  • 给排水设计总说明及图例
  • 给水总平面图
  • 消防给水系统图
  • 地下室给排水平面图
  • 地下室自喷给水平面图

附件详情

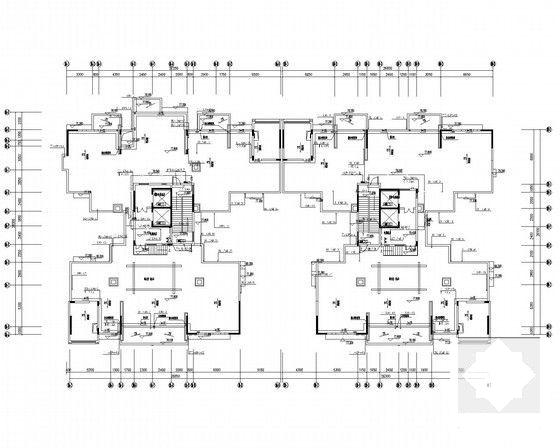
该项目为广东某花园住宅楼给排水施工图纸,由两栋25层单元式塔楼住宅以及一层裙楼商业网点、设备房等组成,建筑高度为77.8米。属高层普通住宅楼。
设计内容:生活给水系统、生活排水系统、雨水系统、室内消火栓系统、自动喷水灭火系统、气体灭火系统。水源来自市政给水管网,生活污水最高日排水量186m /d,最大时排水量19.4m /h。 屋面、阳台设雨水管有组织排到室外散水沟或雨水井。屋面雨水斗采用钢制87型雨水斗。室内消火栓用水量:20L/s,室外消火栓用水量:15L/s,火灾延续时间为2h(室外),2h(室内)。
,共18张图纸。


地下室自喷给水平面图

地下室给排水平面图

泵房平面图一

天面层给排水平面图

给水系统图

室内消火栓系统图

9#A标准层自动喷淋布置平面图

第 1 张图
第 1 张图
第 2 张图
第 2 张图
第 3 张图
第 3 张图
第 4 张图
第 4 张图
第 5 张图
第 5 张图
第 6 张图
第 6 张图
以上是部分图纸截图,有些图框没有放大后再截图,可能截图里不清晰或者看不到内容,您可以在下载后查看具体内容

温馨提示:该资料由网友于2020-2-17 21:16:08上传分享,您可以下载该资料进行学习和参考,如有侵权内容或者违法行为,请及时联系站长删除,如有疑问,您可以在给水排水专区发帖交流相关知识。

附件2099v11edc0ffc01cd111ecs1e.rar

7.53 MB

下载  售价: 100 积分    赚积分

相关帖子

回复

使用道具 举报

您需要登录后才可以回帖 登录 | 立即注册

本版积分规则

QQ|联系我们|豆豆网 ( 苏ICP备20004746号-1 )

GMT+8, 2025-12-28 07:25 , Processed in 0.018102 second(s), 27 queries .

本站所有内容均由网友自主分享,如有侵权内容或者违法行为,请及时联系站长删除,本站将根据实际情况进行积分奖励!请查看:免责声明

快速回复 返回顶部 返回列表