| 
 该帖子包含附件可供参考学习和下载,您可以 搜索 更多您想要的资源   
 
  - 
   附件设计说明:有
  
 
  - 
   建筑类别:办公
  
 
  - 
   建筑高度类型:多层建筑
  
 
  - 
   建筑设计结构形式:钢筋混凝土结构
  
 
  - 
   建筑设计面积:4000平方米
  
 
  - 
   建筑地上层数:6层
  
 
  - 
   图纸设计深度:施工图
  
 
  - 
   参考图纸:17张
  
 
  - 
   设计年代:近代
  
 
  - 
   生活供水设计:生活给水系统
  
 
  - 
   排水设计:污水系统,废水系统,雨水系统
  
 
  - 
   消防设计:室外消火栓系统,室内消火栓系统,喷淋系统
  
 
  - 
   供水方式:市政供水
  
 
  - 
   供水分区:无
  
 
  - 
   排水体制:污废合流,雨污分流
  
 
  - 
   排水技术:重力排水
  
 
  - 
   火灾危险等级:中危险级Ⅰ级
  
 
  - 
   消火栓用水量室外(L/S):20
  
 
  - 
   消火栓用水量室内(L/S):15
  
 
  - 
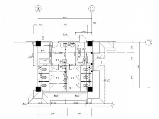
   大样节点:卫生间
  
 
  - 
   项目所在地:湖南
  
 
  
 
  
   附件详情
   
  
   - 
    资料目录
   
 
   - 
    设计说明
   
 
   - 
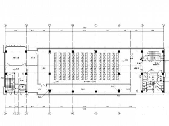
    一层给排水平面图
   
 
   - 
    二层给排水平面图
   
 
   - 
    三层给排水平面图
   
 
   - 
    四,五层给排水平面图
   
 
   - 
    六层给排水平面图
   
 
   - 
    屋顶层给排水平面图
   
 
   - 
    一层自动喷淋平面及系统图
   
 
   - 
    二层自动喷淋平面及系统图
   
 
   - 
    三层自动喷淋平面及系统图
   
 
   - 
    四,五层自动喷淋平面及系统图
   
 
   - 
    六层自动喷淋平面及系统图
   
 
   - 
    卫生间给排水平面大样图
   
 
   - 
    给排水系统图
   
 
   - 
    消火栓给水系统图
   
 
   
  
 
  
   附件详情
   
  
   该项目位于湖南,是一学校综合楼项目,其中建筑面积为4076平米,建筑高度为23.7米,地上六层,属于丙类多层民用建筑,建筑耐火等级为二级;
    
   设计范围:该项目设有给水系统、排水系统、灭火器配置、消火栓系统、自动喷淋灭火系统
    
   ,共计17张图纸;
    
    
   
  
   
  
   
    一层平面图
    
   
    卫生间大样图
    
   
    消火栓给水系统图
    
   
    给排水系统图
    
   
    六层喷淋系统图
    
   
  
 
第 1 张图   
第 2 张图   
第 3 张图   
第 4 张图   
第 5 张图   
第 6 张图   以上是部分图纸截图,有些图框没有放大后再截图,可能截图里不清晰或者看不到内容,您可以在下载后查看具体内容 
 
 温馨提示:该资料由网友于2020-3-1 14:11:06上传分享,您可以下载该资料进行学习和参考,如有侵权内容或者违法行为,请及时联系站长删除,如有疑问,您可以在给水排水专区发帖交流相关知识。
 
	
 |