豆豆网

 找回密码
 立即注册

QQ登录

只需一步,快速开始

查看: 1662|回复: 0

一份高档社区值班室电气CAD施工图纸

[复制链接]

0

主题

0

帖子

1352

积分

超级版主

Rank: 8Rank: 8

积分
1352
发表于 2020-2-19 15:16:45 | 显示全部楼层 |阅读模式

该帖子包含附件可供参考学习和下载,您可以 搜索 更多您想要的资源


  • 设计年代:近代
  • 接地方式:TN-C-S
  • 项目所在地:湖南

附件详情

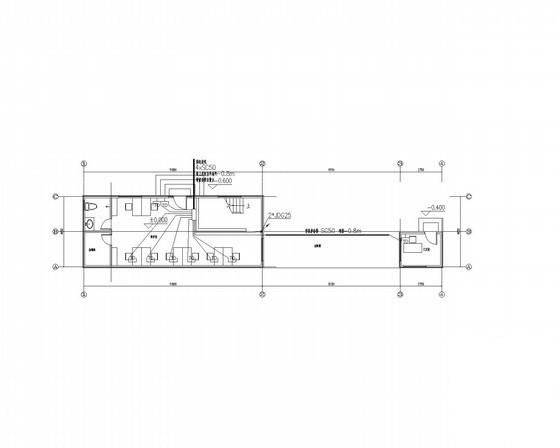
该项目为高档社区门卫房项目。设计范围包括: 照明平面图 ,电气平面图, 弱电平面图 防雷接地 平面图,强电系统图,弱电系统图。图纸内容还包括电缆管道室外敷设详图。

弱电平面图

电气平面图

系统图

社区值班室电气 - 1
第 1 张图
社区值班室电气 - 2
第 2 张图
社区值班室电气 - 3
第 3 张图
社区值班室电气 - 4
第 4 张图
以上是部分图纸截图,有些图框没有放大后再截图,可能截图里不清晰或者看不到内容,您可以在下载后查看具体内容

温馨提示:该资料由网友于2020-2-19 15:16:45上传分享,您可以下载该资料进行学习和参考,如有侵权内容或者违法行为,请及时联系站长删除,如有疑问,您可以在电气工程专区发帖交流相关知识。

附件2099v11edeews0s0fc0cfde2sd.rar

897.87 KB

下载  售价: 100 积分    赚积分

社区值班室电气相关帖子

回复

使用道具 举报

您需要登录后才可以回帖 登录 | 立即注册

本版积分规则

QQ|联系我们|豆豆网 ( 苏ICP备20004746号-1 )

GMT+8, 2025-12-28 23:34 , Processed in 0.016036 second(s), 27 queries .

本站所有内容均由网友自主分享,如有侵权内容或者违法行为,请及时联系站长删除,本站将根据实际情况进行积分奖励!请查看:免责声明

快速回复 返回顶部 返回列表