豆豆网

 找回密码
 立即注册

QQ登录

只需一步,快速开始

查看: 2195|回复: 0

3层{]变电站实训中心给排水CAD施工大样图.dwg

[复制链接]

0

主题

0

帖子

1051

积分

超级版主

Rank: 8Rank: 8

积分
1051
发表于 2020-12-22 20:23:56 | 显示全部楼层 |阅读模式

该帖子包含附件可供参考学习和下载,您可以 搜索 更多您想要的资源


  • 建筑类别:科研
  • 建筑高度:多层建筑
  • 建筑面积:5067平方米
  • 地上层数:3层
  • 图纸设计深度:施工图
  • 参考图纸:12张
  • 生活供水设计:生活给水系统
  • 排水设计:雨水系统,消防排水
  • 消防设计:室外消火栓系统,室内消火栓系统,灭火器配置系统
  • 排水技术:重力排水
  • 消火栓用水量室外(L/S):30
  • 消火栓用水量室内(L/S):15
  • 大样节点:气体灭火,卫生间
  • 项目地址:贵州
  • 设计说明:有
该项目位于贵州省贵阳市水利电力职业技术学院新校区内,总建筑面积5067m。主要功能为110KV变电站实训中心。地上三层,建筑高度19.00m,属于多层公共建筑。
3 设计范围
3.1 该资料范围包括本建筑物室外1米范围内的室内给排水、消防等管道系统,室外红线范围内给、排水系统另详室外工程设计图纸。
4 系统说明
该项目设有生活给水系统、生活排水系统、雨水排水系统、消火栓给水系统以及建筑灭火器。
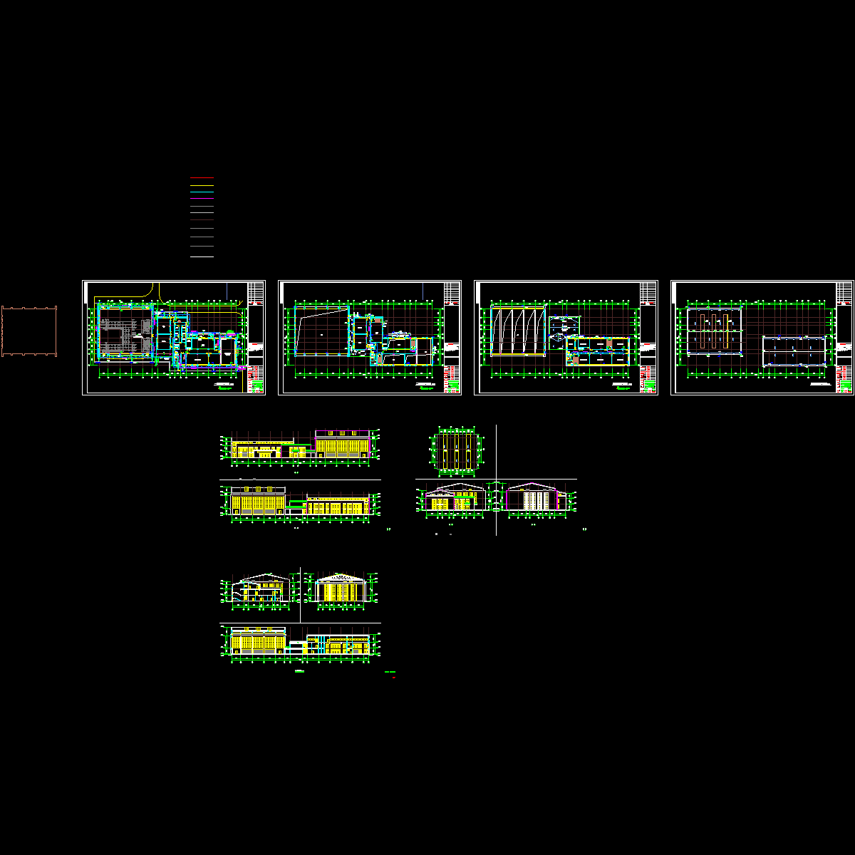
图纸展示:
一层给排水平面图
二层给排水平面图
二层卫生间给排水大样图
设计总说明及常用图例
首层卫生间给排水大样图
排水系统原理图

02给排水总平面图(a23)0709_t3.dwg
02给排水总平面图(a23)0709_t3.dwg
a23 01 室外给排水总说明_t3.dwg
a23 01 室外给排水总说明_t3.dwg
a23系统说明_t3.dwg
a23系统说明_t3.dwg
a23给排水平面图.dwg
a23给排水平面图.dwg
目录.dwg
目录.dwg
以上是部分图纸截图,有些图框没有放大后再截图,可能截图里不清晰或者看不到内容,您可以在下载后查看具体内容

附件2099v11e2f11ed1cdfw2fce.rar

12.05 MB

下载  售价: 100 积分    赚积分

变电站施工相关帖子

回复

使用道具 举报

您需要登录后才可以回帖 登录 | 立即注册

本版积分规则

QQ|联系我们|豆豆网 ( 苏ICP备20004746号-1 )

GMT+8, 2025-12-21 01:16 , Processed in 0.022418 second(s), 27 queries .

本站所有内容均由网友自主分享,如有侵权内容或者违法行为,请及时联系站长删除,本站将根据实际情况进行积分奖励!请查看:免责声明

快速回复 返回顶部 返回列表