豆豆网

 找回密码
 立即注册

QQ登录

只需一步,快速开始

查看: 2573|回复: 0

一份10层三星级酒店电气CAD施工图纸(火灾自动报警系统)

[复制链接]

0

主题

0

帖子

629

积分

超级版主

Rank: 8Rank: 8

积分
629
发表于 2020-2-19 19:38:07 | 显示全部楼层 |阅读模式

该帖子包含附件可供参考学习和下载,您可以 搜索 更多您想要的资源


  • 建筑类别:酒店

  • 建筑高度类型:高层建筑

  • 建筑面积 :28748平方米

  • 建筑地上层数:10层

  • 建筑地下层数:2层

  • 图纸设计深度: 施工图

  • 参考图纸:73张

  • 设计年代:近代

  • 地下室用途:车库,设备用房,其它

  • 负荷等级:一级

  • 项目所在地:江苏


一、项目概要

该项目为三星级酒店项目。地下共两层,地下二层主楼区域为工程部、后勤办公用房、设备用房(包括生活泵房、员工餐厅、员工厨房、粗加工厨房、更衣淋浴间、新风机房、洗衣房、垃圾房等),汽车库、制冷机房(位于汽车库内);地下一层主楼区域为设备用房(包括变电所、消防泵房、运营商机房、弱电机房、强弱电竖井等),锅炉房、水泵间和冷却塔位于主楼核心筒外。地上共十层:一层为大堂(吧)、消控室、后勤服务用房和名品店等,二层为红酒吧和会议室,三层为会议室、多功能厅、厨房等,四层为全日餐厅、厨房、AV机房等,五层为健身房。五六层间为设备转换层,六~十层为客房,卫星电视接收机房位于十层,机房层为新风机房等,屋顶局部为构架和种植屋面,设有太阳能集热板和卫星电视接收设备。面积层高:该项目总建筑面积共28748m,建筑高度:48.95m,层高:地下二层为4.6m,地下一层为8.1m,一层大堂为10.2m,其余为5.4m,二~五层为4.8m(三层多功能厅为7.5m),设备夹层为2.4m,六~七层为3.9m,八层为4.2m,九~十层为3.9m,机房层为2m,局部核心筒为2.8m。图纸类型:DWG。


二、设计范围

1、220/380V配电系统;建筑物防雷接地系统;能耗监测管理系统;火灾自动报警系统;电气火灾监控系统;消防电源监控系统;防火门监控系统。

2、照明设计:应急疏散照明和备用照明、设备用房、楼梯间普通照明设计到位,其它普通照明由建设方另行委托二次装修设计。

3、变电所设在地下一层,变电所设计内容详见变电所图纸,变电所内应采取屏蔽、降噪等措施。

4、智能照明系统;有线电视、综合布线系统; 视频监控系统;楼宇自控系统(BAS)等弱电系统由建设方委托弱电智能化设计单位设计。


三、负荷等级

一级消防负荷:消防电梯、防排烟风机、消防补风机、消防水泵、消防控制室、应急照明、防火卷帘;

一级非消防负荷:电梯、排污泵、生活泵房、门厅、公共疏散走道、楼梯间等照明、弱电机房、监控用电;

二级负荷:多功能厅电声、新闻摄影、录像电源;厨房设备、锅炉房;多功能厅、餐厅、厨房、康乐设施等照明;

其它用电为三级负荷


四、图纸展示

地下二层配电平面图

地下一层照明平面图

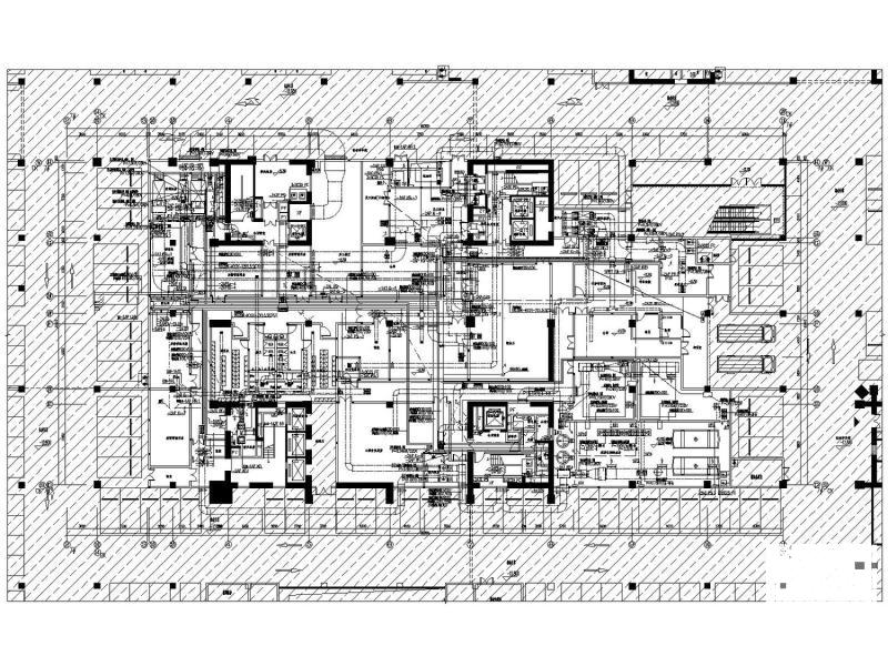
一层火灾自动报警与消防联动平面图

配电箱系统图

酒店锅炉房及冷却塔电气平面图

酒店制冷机房电气平面图

火灾自动报警系统图

消防设备电源监控系统图 防火门监控系统图

能耗、电气火灾监控

配电干线系统图


第 1 张图
第 1 张图
第 2 张图
第 2 张图
第 3 张图
第 3 张图
第 4 张图
第 4 张图
第 5 张图
第 5 张图
第 6 张图
第 6 张图
第 7 张图
第 7 张图
第 8 张图
第 8 张图
以上是部分图纸截图,有些图框没有放大后再截图,可能截图里不清晰或者看不到内容,您可以在下载后查看具体内容

温馨提示:该资料由网友于2020-2-19 19:38:07上传分享,您可以下载该资料进行学习和参考,如有侵权内容或者违法行为,请及时联系站长删除,如有疑问,您可以在酒店建筑专区发帖交流相关知识。

附件2099v11edeec1wswfsfc1c21f1.zip

7.88 MB

下载  售价: 100 积分    赚积分

相关帖子

回复

使用道具 举报

您需要登录后才可以回帖 登录 | 立即注册

本版积分规则

QQ|联系我们|豆豆网 ( 苏ICP备20004746号-1 )

GMT+8, 2025-12-28 21:35 , Processed in 0.028529 second(s), 27 queries .

本站所有内容均由网友自主分享,如有侵权内容或者违法行为,请及时联系站长删除,本站将根据实际情况进行积分奖励!请查看:免责声明

快速回复 返回顶部 返回列表