豆豆网

 找回密码
 立即注册

QQ登录

只需一步,快速开始

查看: 2104|回复: 0

一份多层办公大楼采暖给排水设计CAD图纸

[复制链接]

0

主题

0

帖子

629

积分

超级版主

Rank: 8Rank: 8

积分
629
发表于 2020-2-20 15:52:03 | 显示全部楼层 |阅读模式

该帖子包含附件可供参考学习和下载,您可以 搜索 更多您想要的资源


  • 附件设计说明:有
  • 建筑类别:办公
  • 建筑高度类型:多层建筑
  • 建筑设计面积:3731.76平方米
  • 图纸设计深度:施工图
  • 参考图纸:16张
  • 设计内容:采暖,其它
  • 采暖系统:散热器供暖,热水辐射
  • 项目所在地:新疆

附件详情

  • 设计说明
  • 主要设备表
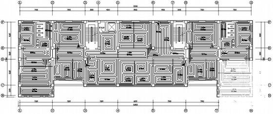
  • 采暖平面图
  • 采暖管道平面图
  • 给排水平面图
  • 地暖盘管平面图
  • 采暖系统图
  • 给排水系统图
  • 大样图

附件详情

该项目为新疆某多层办公大楼。总建筑面积为3731.76平米,建筑高度为22.82米,地上4层,局部5层。本图设计范围为室内采暖给排水系统;涵盖散热器采暖、低温热水地板辐射采暖、生活用水、消火栓给水等系统设计。
本建筑采暖总热负荷为194122w,采暖面积热指标为43W/m2,采暖系统最大控制阻力为11.25KPa(不含热表)。低温地板辐射采暖,采暖热媒为50/40℃低温热水,热源由换热站供给。楼梯间采用散热器采暖,散热器选用型号为:GLZⅡ-600防腐柱翼型钢铝型散热器,每片散热量119W(Δt=64.5℃),每组散热器设φ6手动放气阀一个。管材与连接:采暖干、立管、分水器前明装支管均采用热镀锌钢管,丝接。地板辐射采暖加热盘管选用PEX交联聚乙烯管,使用等级为4级,工作压力:0.60MPa。
图纸共16张。

采暖系统图

采暖入户详图

分集水器大样图

第 1 张图
第 1 张图
第 2 张图
第 2 张图
第 3 张图
第 3 张图
第 4 张图
第 4 张图
以上是部分图纸截图,有些图框没有放大后再截图,可能截图里不清晰或者看不到内容,您可以在下载后查看具体内容

温馨提示:该资料由网友于2020-2-20 15:52:03上传分享,您可以下载该资料进行学习和参考,如有侵权内容或者违法行为,请及时联系站长删除,如有疑问,您可以在给水排水专区发帖交流相关知识。

附件2099v11ede2c000fcc0d1ceds2.rar

753.24 KB

下载  售价: 100 积分    赚积分

相关帖子

回复

使用道具 举报

您需要登录后才可以回帖 登录 | 立即注册

本版积分规则

QQ|联系我们|豆豆网 ( 苏ICP备20004746号-1 )

GMT+8, 2025-12-22 18:04 , Processed in 0.015308 second(s), 27 queries .

本站所有内容均由网友自主分享,如有侵权内容或者违法行为,请及时联系站长删除,本站将根据实际情况进行积分奖励!请查看:免责声明

快速回复 返回顶部 返回列表