豆豆网

 找回密码
 立即注册

QQ登录

只需一步,快速开始

查看: 2515|回复: 0

一份花园景观广场电气给排水CAD施工图纸(三级负荷)

[复制链接]

0

主题

0

帖子

1348

积分

超级版主

Rank: 8Rank: 8

积分
1348
发表于 2020-2-21 11:10:16 | 显示全部楼层 |阅读模式

该帖子包含附件可供参考学习和下载,您可以 搜索 更多您想要的资源


  • 建筑类别:商业
  • 图纸设计深度:施工图
  • 参考图纸:20张
  • 负荷等级:三级
  • 防雷等级:第二类
  • 接地方式:TN-S
  • 强电设计:低压配电, 电气照明, 建筑物防雷, 接地安全

附件详情

  • 1、 电气设计 说明
  • 2、配电系统图
  • 3、 照明平面图
  • 4、动力平面图
  • 5、 防雷接地 平面图

附件详情

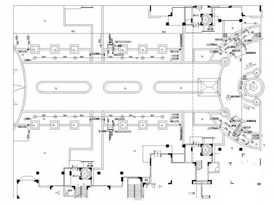
该附件是某花园景观广场电气施工图纸(含给排水),总共20张。
该资料包括: 园林水景照明、动力 、防雷接地等系统。

广场中心雕塑水景电气平面图

主入口广场水景给排水平面图

动力配电箱

第 1 张图
第 1 张图
第 2 张图
第 2 张图
第 3 张图
第 3 张图
第 4 张图
第 4 张图
以上是部分图纸截图,有些图框没有放大后再截图,可能截图里不清晰或者看不到内容,您可以在下载后查看具体内容

温馨提示:该资料由网友于2020-2-21 11:10:16上传分享,您可以下载该资料进行学习和参考,如有侵权内容或者违法行为,请及时联系站长删除,如有疑问,您可以在给水排水专区发帖交流相关知识。

附件2099v11edee2ecde1wfc02esfc.rar

3.4 MB

下载  售价: 100 积分    赚积分

相关帖子

回复

使用道具 举报

您需要登录后才可以回帖 登录 | 立即注册

本版积分规则

QQ|联系我们|豆豆网 ( 苏ICP备20004746号-1 )

GMT+8, 2025-11-6 06:32 , Processed in 0.016239 second(s), 27 queries .

本站所有内容均由网友自主分享,如有侵权内容或者违法行为,请及时联系站长删除,本站将根据实际情况进行积分奖励!请查看:免责声明

快速回复 返回顶部 返回列表