豆豆网

 找回密码
 立即注册

QQ登录

只需一步,快速开始

查看: 1861|回复: 0

一份3万平高层住宅楼带人防电气CAD施工图纸(甲级院设计)(控制箱原理图)

[复制链接]

0

主题

0

帖子

963

积分

超级版主

Rank: 8Rank: 8

积分
963
发表于 2020-2-21 13:13:17 | 显示全部楼层 |阅读模式

该帖子包含附件可供参考学习和下载,您可以 搜索 更多您想要的资源


附件详情

  • 电气设计总说明
  • 主要设备材料表
  • 电井布置详图
  • 多媒体箱示意图
  • 住宅部分公共照明灯具接线图
  • 住宅低压竖向配电系统图
  • 有线电视系统图
  • 电话系统图
  • 宽带网布线系统图
  • 楼宇对讲系统图
  • 人防地下室设计说明
  • 人防插座箱系统图
  • 通风方式信号控制箱原理图
  • 住宅低压配电柜系统图
  • 商业低压竖向配电系统图
  • 配电箱系统图
  • 配电平面图
  • 照明平面图
  • 弱电平面图
  • 火灾自动报警及消防联动控制系统设计说明
  • 平面线性图例
  • 火灾报警设备图例
  • 火灾报警及联动控制系统图
  • 火灾自动报警及消防联动控制平面图
  • 平面线性图例
  • 火灾报警设备图例
  • 基础接地平面图
  • 屋面 防雷平面图

附件详情

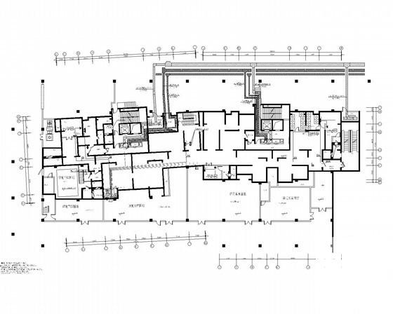
该项目为住宅楼项目。共两个单元.均为地下二层,地上三十二层。其中地下平时为非机动车停车库,战时为核甲类二等人员掩蔽所;一~三十二层为普通住宅。总建筑面积28363.90平方米,建筑物高度92.800m。该项目属于一类高层住宅楼。建筑设计结构形式为钢筋混凝土剪力墙结构。设计时间为。

配电平面图

弱电平面图

二单元低压竖向配电系统图

二单元住宅低压配电柜系统图

配电系统图

消防平面图

高层人防电气住宅 - 1
第 1 张图
高层人防电气住宅 - 2
第 2 张图
高层人防电气住宅 - 3
第 3 张图
高层人防电气住宅 - 4
第 4 张图
高层人防电气住宅 - 5
第 5 张图
高层人防电气住宅 - 6
第 6 张图
高层人防电气住宅 - 7
第 7 张图
以上是部分图纸截图,有些图框没有放大后再截图,可能截图里不清晰或者看不到内容,您可以在下载后查看具体内容

温馨提示:该资料由网友于2020-2-21 13:13:17上传分享,您可以下载该资料进行学习和参考,如有侵权内容或者违法行为,请及时联系站长删除,如有疑问,您可以在电气工程专区发帖交流相关知识。

附件2099v11edee2fewssd2dccdcee.zip

3.49 MB

下载  售价: 100 积分    赚积分

高层人防电气住宅相关帖子

回复

使用道具 举报

您需要登录后才可以回帖 登录 | 立即注册

本版积分规则

QQ|联系我们|豆豆网 ( 苏ICP备20004746号-1 )

GMT+8, 2025-12-26 00:33 , Processed in 0.015791 second(s), 27 queries .

本站所有内容均由网友自主分享,如有侵权内容或者违法行为,请及时联系站长删除,本站将根据实际情况进行积分奖励!请查看:免责声明

快速回复 返回顶部 返回列表