豆豆网

 找回密码
 立即注册

QQ登录

只需一步,快速开始

查看: 2515|回复: 0

一份1万平工业厂房高原型特高压电力变压器建设项目电气CAD施工图纸

[复制链接]

0

主题

0

帖子

963

积分

超级版主

Rank: 8Rank: 8

积分
963
发表于 2020-2-21 15:18:30 | 显示全部楼层 |阅读模式

该帖子包含附件可供参考学习和下载,您可以 搜索 更多您想要的资源


附件详情

  • 设计与施工说明
  • 主要设备及材料表
  • 变电所系统图
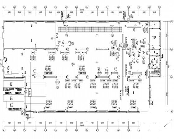
  • 变电所提土建、公用平面图
  • 变电所电气布置平面图
  • 变电所接地平面图
  • 动力 配电箱系统
  • 配电平面图
  • 照明配电箱系统图
  • 照明平面图
  • 防雷接地平面图
  • 动力管道平面图
  • 动力管道系统图
  • 预埋件及管道汇总示意图
  • 霞普气和氧气工位箱制作示意图
  • 混合气工位箱制作示意图
  • 弱电系统图
  • 弱电平面图
  • ……

附件详情

该项目为工业厂房,位于高原地区,建筑面积约10300m2,建筑高度21.2m,厂房为钢结构,辅房为混凝土框架结构,丁类厂房。

配电平面图

动力管道平面图

动力配电箱系统图

变电所系统图

变电所电气布置平面图

弱电系统图

预埋件及管道汇总示意图

霞普气和氧气工位箱制作示意图

照明配电箱系统图

弱电平面图

工业变压器 - 1
第 1 张图
工业变压器 - 2
第 2 张图
工业变压器 - 3
第 3 张图
工业变压器 - 4
第 4 张图
工业变压器 - 5
第 5 张图
工业变压器 - 6
第 6 张图
工业变压器 - 7
第 7 张图
工业变压器 - 8
第 8 张图
以上是部分图纸截图,有些图框没有放大后再截图,可能截图里不清晰或者看不到内容,您可以在下载后查看具体内容

温馨提示:该资料由网友于2020-2-21 15:18:30上传分享,您可以下载该资料进行学习和参考,如有侵权内容或者违法行为,请及时联系站长删除,如有疑问,您可以在电气工程专区发帖交流相关知识。

附件2099v11edee2sesces1fc02e1c.zip

2.59 MB

下载  售价: 100 积分    赚积分

工业变压器相关帖子

回复

使用道具 举报

0

主题

0

帖子

2

积分

注册用户

Rank: 1

积分
2
发表于 2023-8-18 10:50:02
好东西!!!!!!!!!!

您需要登录后才可以回帖 登录 | 立即注册

本版积分规则

QQ|联系我们|豆豆网 ( 苏ICP备20004746号-1 )

GMT+8, 2025-12-28 09:20 , Processed in 0.022942 second(s), 27 queries .

本站所有内容均由网友自主分享,如有侵权内容或者违法行为,请及时联系站长删除,本站将根据实际情况进行积分奖励!请查看:免责声明

快速回复 返回顶部 返回列表