豆豆网

 找回密码
 立即注册

QQ登录

只需一步,快速开始

查看: 1832|回复: 0

5层办公楼成套给排水CAD图纸(自动喷淋系统图)

[复制链接]

0

主题

0

帖子

1470

积分

超级版主

Rank: 8Rank: 8

积分
1470
发表于 2020-2-22 00:32:02 | 显示全部楼层 |阅读模式

该帖子包含附件可供参考学习和下载,您可以 搜索 更多您想要的资源


  • 建筑类别:办公建筑
  • 建筑层数:多层建筑
  • 建筑设计面积:5600平方米
  • 建筑高度:19.65m
  • 地上楼层:5层
  • 设计阶段:施工图设计
  • 供水方式:市政供水
  • 供水分区:无
  • 污废水排水体制:合流
  • 设计内容:给水系统, 污水排水系统, 雨水排水系统, 消火栓系统, 喷淋系统
  • 参考图纸:20张以下
  • 设计年代:近代

附件详情

某五层办公楼成套水图,该项目为办公大楼;主要功能为办公。共5层,建筑高度约19.65米,总建筑面积约5600平米。图纸内容包括平面图、系统图等等。

卫生间大样图

生活给水排水系统图

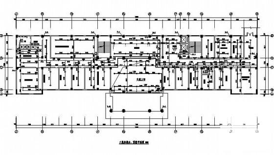
消火栓、自动喷淋系统图

办公楼喷淋系统 - 1
第 1 张图
办公楼喷淋系统 - 2
第 2 张图
办公楼喷淋系统 - 3
第 3 张图
办公楼喷淋系统 - 4
第 4 张图
以上是部分图纸截图,有些图框没有放大后再截图,可能截图里不清晰或者看不到内容,您可以在下载后查看具体内容

温馨提示:该资料由网友于2020-2-22 00:32:02上传分享,您可以下载该资料进行学习和参考,如有侵权内容或者违法行为,请及时联系站长删除,如有疑问,您可以在给水排水专区发帖交流相关知识。

附件2099v11edc0edssdwff0fecf1f.rar

1.09 MB

下载  售价: 100 积分    赚积分

办公楼喷淋系统相关帖子

回复

使用道具 举报

您需要登录后才可以回帖 登录 | 立即注册

本版积分规则

QQ|联系我们|豆豆网 ( 苏ICP备20004746号-1 )

GMT+8, 2025-12-22 17:28 , Processed in 0.016806 second(s), 27 queries .

本站所有内容均由网友自主分享,如有侵权内容或者违法行为,请及时联系站长删除,本站将根据实际情况进行积分奖励!请查看:免责声明

快速回复 返回顶部 返回列表