豆豆网

 找回密码
 立即注册

QQ登录

只需一步,快速开始

查看: 3417|回复: 0

一份商业综合楼空调通风及防排烟系统设计CAD施工图纸(风冷热泵机组)

[复制链接]

0

主题

0

帖子

776

积分

超级版主

Rank: 8Rank: 8

积分
776
发表于 2020-2-26 10:03:02 | 显示全部楼层 |阅读模式

该帖子包含附件可供参考学习和下载,您可以 搜索 更多您想要的资源


  • 附件设计说明:有
  • 建筑类别:办公,商业
  • 建筑高度类型:多层建筑
  • 建筑设计面积:4600平方米
  • 图纸设计深度:施工图
  • 参考图纸:18张
  • 设计内容:空调,通风,防排烟,冷热源
  • 冷热源:电动压缩式冷水机组
  • 空调系统:空气-水系统
  • 采暖系统:散热器供暖
  • 送风方式:散流器送风

附件详情

一、项目概要:

该项目总建筑面积4600m,建筑高度20m。图纸内容包含设计施工说明、空调水系统图、空调通风平面图、空调水管平面图、剖面图和局部大样图等...

二、空调系统:

1.冷热源:采用风冷热泵机组...

2.风系统:采用风机盘管加新风系统....

三、通风排烟系统:

1.通风系统:机械通风系统...

2.防排烟系统:采用变压式机械排风,机械排烟系统...

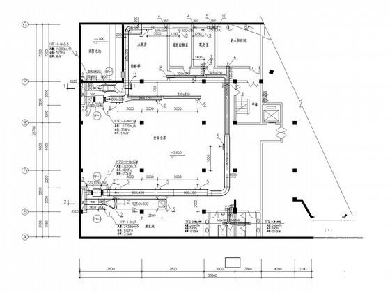
一层通风平面图(一)

二、三层通风平面图(一)

负一层通风平面图

第 1 张图
第 1 张图
第 2 张图
第 2 张图
第 3 张图
第 3 张图
第 4 张图
第 4 张图
以上是部分图纸截图,有些图框没有放大后再截图,可能截图里不清晰或者看不到内容,您可以在下载后查看具体内容

温馨提示:该资料由网友于2020-2-26 10:03:02上传分享,您可以下载该资料进行学习和参考,如有侵权内容或者违法行为,请及时联系站长删除,如有疑问,您可以在商业建筑专区发帖交流相关知识。

附件2099v11ede2sefccfc011d22ef.rar

614.95 KB

下载  售价: 100 积分    赚积分

相关帖子

回复

使用道具 举报

您需要登录后才可以回帖 登录 | 立即注册

本版积分规则

QQ|联系我们|豆豆网 ( 苏ICP备20004746号-1 )

GMT+8, 2025-12-28 02:41 , Processed in 0.015114 second(s), 27 queries .

本站所有内容均由网友自主分享,如有侵权内容或者违法行为,请及时联系站长删除,本站将根据实际情况进行积分奖励!请查看:免责声明

快速回复 返回顶部 返回列表