豆豆网

 找回密码
 立即注册

QQ登录

只需一步,快速开始

查看: 2736|回复: 0

一份9层商业综合楼空调通风及防排烟CAD施工图纸(人防设计)(离心式冷水机组)

[复制链接]

0

主题

0

帖子

1096

积分

超级版主

Rank: 8Rank: 8

积分
1096
发表于 2020-2-26 09:50:24 | 显示全部楼层 |阅读模式

该帖子包含附件可供参考学习和下载,您可以 搜索 更多您想要的资源


  • 附件设计说明:有
  • 建筑类别:办公,商业
  • 建筑高度类型:高层建筑
  • 建筑设计面积:42427.6平方米
  • 建筑地上层数:9层
  • 建筑地下层数:2层
  • 图纸设计深度:施工图
  • 参考图纸:33张
  • 设计年代:近代
  • 设计内容:空调,通风,防排烟,冷热源,机房,人防
  • 冷热源:电动压缩式冷水机组,空气调节器
  • 空调系统:全空气系统
  • 送风方式:散流器送风
  • 项目所在地:广东

附件详情

一、项目概要:
该项目为一类高层综合楼,总建筑面积42427.6平米,地上9层,地下2层...
二、冷热源:
设计选用离心式冷水机组及螺杆式水冷冷水机组...
三、空调系统:
1.空间较大的空调区设置全空气系统,对于小办公室等设置风机盘管加新风系统。
2.办公及会议室采用变频多联中央空调系统...
四、通风排烟系统:
1.地下一、二层车库设机械排风兼排烟系统,排风(排烟)量按6次/h的换气次数计算。
2.地下室变配电房采用气体灭火系统。设机械排风兼事故排风系统。平时系统开启通风换气,换气次数为8次/小时。
3.水泵房设机械排风系统,换气次数为4次/小时...

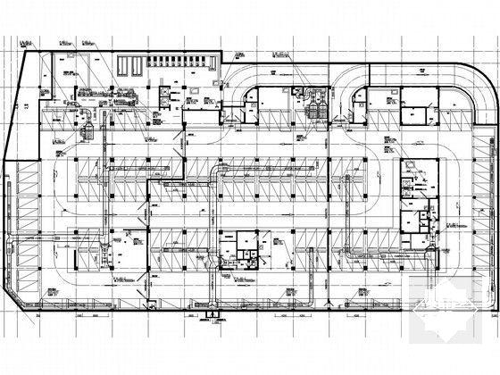
图纸共33张。

空调水管干管平面图

空调水管平面图

送风口部详图

通风防排烟 平面图

战时通风平面图

制冷机房管道布置平面图

空调制冷系统图

第 1 张图
第 1 张图
第 2 张图
第 2 张图
第 3 张图
第 3 张图
第 4 张图
第 4 张图
第 5 张图
第 5 张图
第 6 张图
第 6 张图
第 7 张图
第 7 张图
以上是部分图纸截图,有些图框没有放大后再截图,可能截图里不清晰或者看不到内容,您可以在下载后查看具体内容

温馨提示:该资料由网友于2020-2-26 09:50:24上传分享,您可以下载该资料进行学习和参考,如有侵权内容或者违法行为,请及时联系站长删除,如有疑问,您可以在商业建筑专区发帖交流相关知识。

附件2099v11ede2s21scs21c1cs0cd.rar

4.11 MB

下载  售价: 100 积分    赚积分

相关帖子

回复

使用道具 举报

您需要登录后才可以回帖 登录 | 立即注册

本版积分规则

QQ|联系我们|豆豆网 ( 苏ICP备20004746号-1 )

GMT+8, 2025-12-29 07:28 , Processed in 0.014539 second(s), 27 queries .

本站所有内容均由网友自主分享,如有侵权内容或者违法行为,请及时联系站长删除,本站将根据实际情况进行积分奖励!请查看:免责声明

快速回复 返回顶部 返回列表