豆豆网

 找回密码
 立即注册

QQ登录

只需一步,快速开始

查看: 2606|回复: 0

[CAD]体育训练馆空调设计图纸(置换送风)

[复制链接]

0

主题

0

帖子

1596

积分

超级版主

Rank: 8Rank: 8

积分
1596
发表于 2020-2-26 21:09:01 | 显示全部楼层 |阅读模式

该帖子包含附件可供参考学习和下载,您可以 搜索 更多您想要的资源


  • 附件设计说明:有
  • 建筑类别:体育
  • 建筑高度类型:单层建筑
  • 参考图纸:20张
  • 设计年代:近代
  • 设计内容:空调,通风,防排烟,机房
  • 空调系统:全空气系统
  • 送风方式:侧面送风,喷口送风,其他

附件详情

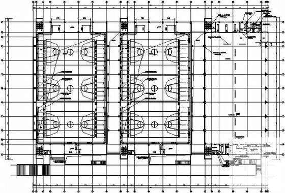
稿件为某体育馆训练馆空调设计图纸;场馆水系统水平,垂直方向都为同程式布置。
空调设计:
1.乒乓球馆,羽毛球馆采用柱式置换送风口置换送风。
2.篮球馆,排球馆采用球型喷口侧送风,各喷口都带电动风阀,以便于调整送风角度。
3.办公室和训练房采用风机盘管下送……

图纸共20张。

空调水系统图

空调平面图

空气箱比例积分温度控制

机房大样

体育训练馆设计 - 1
第 1 张图
体育训练馆设计 - 2
第 2 张图
体育训练馆设计 - 3
第 3 张图
体育训练馆设计 - 4
第 4 张图
体育训练馆设计 - 5
第 5 张图
体育训练馆设计 - 6
第 6 张图
以上是部分图纸截图,有些图框没有放大后再截图,可能截图里不清晰或者看不到内容,您可以在下载后查看具体内容

温馨提示:该资料由网友于2020-2-26 21:09:01上传分享,您可以下载该资料进行学习和参考,如有侵权内容或者违法行为,请及时联系站长删除,如有疑问,您可以在暖通空调专区发帖交流相关知识。

附件2099v11edecc1c0f2fc2cce0ec.rar

1.6 MB

下载  售价: 100 积分    赚积分

体育训练馆设计相关帖子

回复

使用道具 举报

您需要登录后才可以回帖 登录 | 立即注册

本版积分规则

QQ|联系我们|豆豆网 ( 苏ICP备20004746号-1 )

GMT+8, 2025-12-23 22:34 , Processed in 0.016279 second(s), 27 queries .

本站所有内容均由网友自主分享,如有侵权内容或者违法行为,请及时联系站长删除,本站将根据实际情况进行积分奖励!请查看:免责声明

快速回复 返回顶部 返回列表