豆豆网

 找回密码
 立即注册

QQ登录

只需一步,快速开始

查看: 2612|回复: 0

一份6层办公楼采暖空调设计CAD施工图纸

[复制链接]

0

主题

0

帖子

1111

积分

超级版主

Rank: 8Rank: 8

积分
1111
发表于 2020-2-27 13:22:07 | 显示全部楼层 |阅读模式

该帖子包含附件可供参考学习和下载,您可以 搜索 更多您想要的资源


  • 附件设计说明:无
  • 建筑类别:办公
  • 图纸设计深度:施工图
  • 参考图纸:8张
  • 设计内容:空调

附件详情

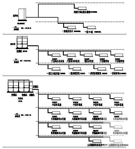
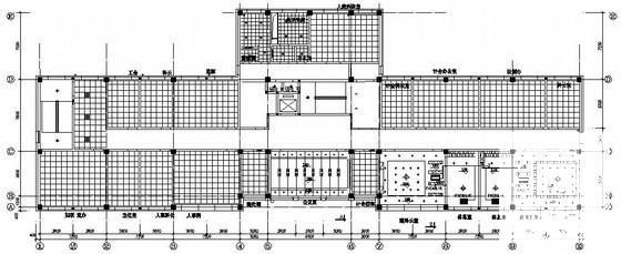
多层办公楼采暖空调设计施工图,地上六层。

图纸共8张。

VRV中央空调系统图

五层VRV中央空调平面图

施工设计图

第 1 张图
第 1 张图
第 2 张图
第 2 张图
第 3 张图
第 3 张图
第 4 张图
第 4 张图
以上是部分图纸截图,有些图框没有放大后再截图,可能截图里不清晰或者看不到内容,您可以在下载后查看具体内容

温馨提示:该资料由网友于2020-2-27 13:22:07上传分享,您可以下载该资料进行学习和参考,如有侵权内容或者违法行为,请及时联系站长删除,如有疑问,您可以在暖通空调专区发帖交流相关知识。

附件2099v11edecws2e1020csce2cd.zip

1.17 MB

下载  售价: 100 积分    赚积分

相关帖子

回复

使用道具 举报

您需要登录后才可以回帖 登录 | 立即注册

本版积分规则

QQ|联系我们|豆豆网 ( 苏ICP备20004746号-1 )

GMT+8, 2025-12-22 22:55 , Processed in 0.016111 second(s), 27 queries .

本站所有内容均由网友自主分享,如有侵权内容或者违法行为,请及时联系站长删除,本站将根据实际情况进行积分奖励!请查看:免责声明

快速回复 返回顶部 返回列表