豆豆网

 找回密码
 立即注册

QQ登录

只需一步,快速开始

查看: 2474|回复: 0

一份多层行政办公楼空调系统设计CAD施工图纸

[复制链接]

0

主题

0

帖子

1734

积分

超级版主

Rank: 8Rank: 8

积分
1734
发表于 2020-2-27 16:46:35 | 显示全部楼层 |阅读模式

该帖子包含附件可供参考学习和下载,您可以 搜索 更多您想要的资源


  • 图纸设计深度:施工图
  • 参考图纸:7张

附件详情

一、项目概要:
中央空调工程。该建筑物共五层。总空调面积约为2240m2...
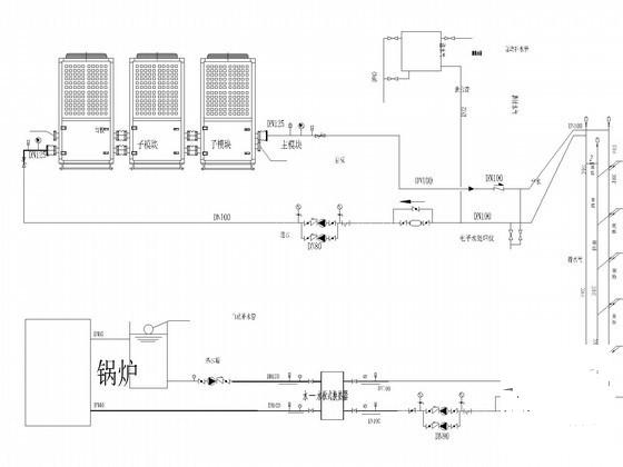
二、冷热源:
选用风冷模块机组解决夏季供冷,冬季供暖采用锅炉加板式换热器...
三、空调系统:
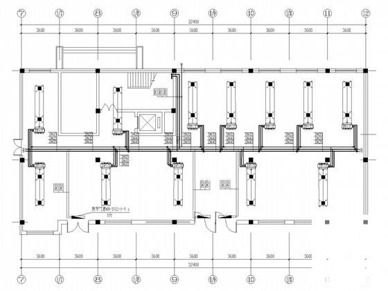
1.办公楼采用卧式暗装标准型风机盘管,空调水系统采用二管制闭式系统设计。
2.主立管采用同程。
3.水平管路采用异程...

图纸共7张。

模块机组系统图

一层空调平面图

第 1 张图
第 1 张图
第 2 张图
第 2 张图
第 3 张图
第 3 张图
以上是部分图纸截图,有些图框没有放大后再截图,可能截图里不清晰或者看不到内容,您可以在下载后查看具体内容

温馨提示:该资料由网友于2020-2-27 16:46:35上传分享,您可以下载该资料进行学习和参考,如有侵权内容或者违法行为,请及时联系站长删除,如有疑问,您可以在暖通空调专区发帖交流相关知识。

附件2099v11ede2sces0fcccc2ccd1.rar

595.05 KB

下载  售价: 100 积分    赚积分

相关帖子

回复

使用道具 举报

您需要登录后才可以回帖 登录 | 立即注册

本版积分规则

QQ|联系我们|豆豆网 ( 苏ICP备20004746号-1 )

GMT+8, 2025-11-18 02:55 , Processed in 0.014200 second(s), 27 queries .

本站所有内容均由网友自主分享,如有侵权内容或者违法行为,请及时联系站长删除,本站将根据实际情况进行积分奖励!请查看:免责声明

快速回复 返回顶部 返回列表