豆豆网

 找回密码
 立即注册

QQ登录

只需一步,快速开始

查看: 585|回复: 0

医药生产车间暖通及空压冷冻系统设计CAD施工图纸

[复制链接]

0

主题

0

帖子

1597

积分

超级版主

Rank: 8Rank: 8

积分
1597
发表于 2020-2-27 17:02:46 | 显示全部楼层 |阅读模式

该帖子包含附件可供参考学习和下载,您可以 搜索 更多您想要的资源


  • 附件设计说明:有
  • 建筑类别:工业建筑
  • 建筑高度类型:单层建筑
  • 图纸设计深度:施工图
  • 参考图纸:23张
  • 设计年代:近代
  • 设计内容:空调,通风,洁净,冷热源,机房
  • 冷热源:电动压缩式冷水机组
  • 空调系统:全空气系统
  • 节点大样:冷却塔
  • 特殊系统:空压系统
  • 项目所在地:江西

附件详情

  • 空调系统设计说明
  • 空调系统材料明细表
  • 空调通风设备明细表
  • 空调系统风量平衡及风口型式一览表
  • 空调通风系统送风管道及设备 平面布置图
  • 空调通风系统回.排风.除尘管道及设备平面布置图
  • 空调系统风口平面布置图
  • 空调机房管道及设备平面布置图
  • 屋面冷冻及通风设备平面布置图
  • 空压冷冻设计施工说明
  • 冷冻工艺流程图
  • 空压工艺流程图
  • 空压冷冻设备平面布置图
  • 空压冷冻设备基础平面布置图
  • 空压冷冻管道设备平面布置图
  • 空压冷冻设备一览表
  • 空压冷冻材料一览表

附件详情

稿件为江西某医药生产公司GMP工程综合生产车间洁净空调系统级空压冷冻设计施工图纸;该车间含无菌眼药水车间、仓库及办公室等。
冷冻系统:该项目设计一套电制冷系统,制冷量599.0KW。可提供103.0m /h7℃空调冷媒,循环冷却水123.0m /h,冷却水进水温度30°C,出水温度35°C。
空压系统: 该项目设计一台空压机,压缩空气排气量为3.30m/min,排气压力0.75Mpa压缩空气。因要求无油无水洁净空气,本系统采用了双螺杆式空气压缩机(风冷),并经过冷冻式压缩空气干燥器干燥,及离心式油水分离器.主管路过滤器.微油雾过滤器.活性碳吸附过滤后,压缩空气可达如下标准粒子≤0.01um,满足医药工业用气要求。
……

,图纸共23张。

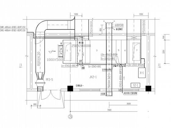
冷冻工艺流程图

空调机房管道及设备平面布置图

空调机房剖面图

空压工艺流程图

空压冷冻管道设备平面布置图

眼药水车间暖通、空压冷冻

生产车间暖通 - 1
第 1 张图
生产车间暖通 - 2
第 2 张图
生产车间暖通 - 3
第 3 张图
生产车间暖通 - 4
第 4 张图
生产车间暖通 - 5
第 5 张图
生产车间暖通 - 6
第 6 张图
以上是部分图纸截图,有些图框没有放大后再截图,可能截图里不清晰或者看不到内容,您可以在下载后查看具体内容

温馨提示:该资料由网友于2020-2-27 17:02:46上传分享,您可以下载该资料进行学习和参考,如有侵权内容或者违法行为,请及时联系站长删除,如有疑问,您可以在建筑施工专区发帖交流相关知识。

附件2099v11ede2efw1e0ecc0cse22.rar

2.04 MB

下载  售价: 100 积分    赚积分

生产车间暖通相关帖子

回复

使用道具 举报

您需要登录后才可以回帖 登录 | 立即注册

本版积分规则

QQ|联系我们|豆豆网 ( 苏ICP备20004746号-1 )

GMT+8, 2025-12-28 05:45 , Processed in 0.063060 second(s), 28 queries .

本站所有内容均由网友自主分享,如有侵权内容或者违法行为,请及时联系站长删除,本站将根据实际情况进行积分奖励!请查看:免责声明

快速回复 返回顶部 返回列表