豆豆网

 找回密码
 立即注册

QQ登录

只需一步,快速开始

查看: 688|回复: 0

15层高层综合楼采暖通风及防排烟系统设计CAD施工图纸(负荷计算书)

[复制链接]

0

主题

0

帖子

1596

积分

超级版主

Rank: 8Rank: 8

积分
1596
发表于 2020-2-28 19:24:14 | 显示全部楼层 |阅读模式

该帖子包含附件可供参考学习和下载,您可以 搜索 更多您想要的资源


  • 附件设计说明:有
  • 建筑类别:办公,商业,娱乐,餐饮
  • 建筑高度类型:高层建筑
  • 建筑设计面积:28676.58平方米
  • 建筑地上层数:15层
  • 建筑地下层数:1层
  • 图纸设计深度:施工图
  • 参考图纸:21张
  • 设计年代:近代
  • 设计内容:通风,采暖,防排烟,机房
  • 冷热源:市政热网
  • 采暖系统:散热器供暖,热水辐射
  • 水系统:同程式
  • 送风方式:散流器送风
  • 项目所在地:河北

附件详情

  • 设计施工说明
  • 使用标准图目录
  • 热力入口详图
  • 双管系统散热器连接示意图
  • 通风平面图
  • 采暖平面图
  • 防排烟平面图
  • 采暖系统图
  • 合用前室正压送风原理图
  • 机械排烟原理图剖面图
  • 地下室剖面图
  • ......

附件详情

一、项目概要:
该项目为河北省张家口市1栋综合楼,总建筑面积28676.58m,其中地上建筑面积为25025.05m ,地下建筑面积为3651.53m,建筑高度为54.8m,地下一层,地上十五层。地下一层为车库,地上为办公、餐厅、厨房。采暖面积为24487.3m.......
二、采暖系统:
1.该项目采暖热源由厂区内换热站提供85/60°C热水。
2.该项目采暖总耗热量为768.9KW,平均采暖热指标为31.4W/m。
3.三层到十五层办公部分采暖系统采用上供下回垂直双管同程式系统,一、二层采暖系统采用上供上回水平同程式系统
4.采暖系统采用铸铁四柱760型(带腿)散热器......
三、通风排烟系统:
1.地下室生活水泵房设一套机械排风系统,换气次数按6次/h计算。
2.地下室一层车库为一个防火分区,二个防烟分区,排风和排烟共用一套系统,平时设一套机械排风排烟系统。
3.地下室柴油发电机房设一套机械排风系统,换气次数按15次/h计算,利用防火风口进行补风......

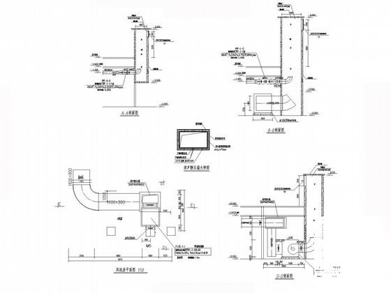
图纸共21张

风机房平面图

高区采暖系统图

机械排烟原理图

通风防排烟 平面图

地下一层通风平面图

采暖设计计算书 - 1
第 1 张图
采暖设计计算书 - 2
第 2 张图
采暖设计计算书 - 3
第 3 张图
采暖设计计算书 - 4
第 4 张图
以上是部分图纸截图,有些图框没有放大后再截图,可能截图里不清晰或者看不到内容,您可以在下载后查看具体内容

温馨提示:该资料由网友于2020-2-28 19:24:14上传分享,您可以下载该资料进行学习和参考,如有侵权内容或者违法行为,请及时联系站长删除,如有疑问,您可以在建筑施工专区发帖交流相关知识。

附件2099v11ede2f0ew22ce1secd2s.rar

2.05 MB

下载  售价: 100 积分    赚积分

采暖设计计算书相关帖子

回复

使用道具 举报

您需要登录后才可以回帖 登录 | 立即注册

本版积分规则

QQ|联系我们|豆豆网 ( 苏ICP备20004746号-1 )

GMT+8, 2025-12-21 09:37 , Processed in 0.016005 second(s), 27 queries .

本站所有内容均由网友自主分享,如有侵权内容或者违法行为,请及时联系站长删除,本站将根据实际情况进行积分奖励!请查看:免责声明

快速回复 返回顶部 返回列表