豆豆网

 找回密码
 立即注册

QQ登录

只需一步,快速开始

查看: 3105|回复: 0

一份多层办公楼建筑空调通风系统设计CAD施工图纸(地源热泵)

[复制链接]

0

主题

0

帖子

1384

积分

超级版主

Rank: 8Rank: 8

积分
1384
发表于 2020-2-29 21:33:57 | 显示全部楼层 |阅读模式

该帖子包含附件可供参考学习和下载,您可以 搜索 更多您想要的资源


  • 附件设计说明:有
  • 建筑类别:办公
  • 建筑高度类型:多层建筑
  • 建筑设计面积:21959平方米
  • 图纸设计深度:施工图
  • 参考图纸:25张
  • 设计年代:近代
  • 设计内容:空调,通风,冷热源
  • 冷热源:水地源热泵
  • 空调系统:全空气系统,空气-水系统
  • 全空气系统:定风量
  • 水系统:双管制,异程式
  • 送风方式:散流器送风
  • 项目所在地:上海

附件详情

  • 施工图设计说明
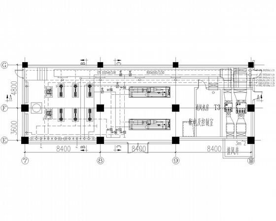
  • 空调及通风系统布置图
  • 室外地埋管系统孔位图
  • 设备平面布置及基础图
  • 空调管道 平面布置图
  • 空调管道剖面图
  • 通风机房详图
  • 空调机房详图
  • 空调末端水系统流程图
  • 空调水系统原理图
  • ......

附件详情

一、项目概要:
该项目由地下一层、地上五层组成的多层建筑。总建筑设计面积:21959m2,建筑总高度:23.95m......
二、冷热源:
空调冷热源采用地源热泵主机与辅助冷却塔相结合的空调形式......
三、空调系统设计:
1.空调水系统采用二管制异程式系统。
2.空调末端水系统供回水温度:夏季6~12°C,冬季45~40°C。
3.大空间采用全空气定风量低速管道系统。
4.会议等采用风机盘管加新风系统......
四、通风系统:
1.采用机械送排风方式,通风量按设备发热量计算。
2.能源中心按6次/h换气次数计算通风量。
3.办公区采用排风竖井将每层的新风的80%通过排风支管排至屋面后在经全热回收机组后排至室外......

图纸共25张。

空调及通风系统平面图

空调末端水系统流程图

空调水系统原理图

主要设备平面布置图

空调管道平面布置图

办公楼地源热泵 - 1
第 1 张图
办公楼地源热泵 - 2
第 2 张图
办公楼地源热泵 - 3
第 3 张图
办公楼地源热泵 - 4
第 4 张图
办公楼地源热泵 - 5
第 5 张图
办公楼地源热泵 - 6
第 6 张图
以上是部分图纸截图,有些图框没有放大后再截图,可能截图里不清晰或者看不到内容,您可以在下载后查看具体内容

温馨提示:该资料由网友于2020-2-29 21:33:57上传分享,您可以下载该资料进行学习和参考,如有侵权内容或者违法行为,请及时联系站长删除,如有疑问,您可以在暖通空调专区发帖交流相关知识。

附件2099v11ede2dc002ccdd1002s2.rar

4.2 MB

售价: 100 积分    赚积分

办公楼地源热泵相关帖子

回复

使用道具 举报

您需要登录后才可以回帖 登录 | 立即注册

本版积分规则

QQ|联系我们|豆豆网 ( 苏ICP备20004746号-1 )

GMT+8, 2025-12-28 18:15 , Processed in 0.025203 second(s), 27 queries .

本站所有内容均由网友自主分享,如有侵权内容或者违法行为,请及时联系站长删除,本站将根据实际情况进行积分奖励!请查看:免责声明

快速回复 返回顶部 返回列表