豆豆网

 找回密码
 立即注册

QQ登录

只需一步,快速开始

查看: 3173|回复: 0

国内小型宾馆暖通空调系统设计CAD施工图纸(装修设计)

[复制链接]

0

主题

0

帖子

1736

积分

超级版主

Rank: 8Rank: 8

积分
1736
发表于 2020-2-29 09:39:25 | 显示全部楼层 |阅读模式

该帖子包含附件可供参考学习和下载,您可以 搜索 更多您想要的资源


  • 附件设计说明:有
  • 建筑类别:酒店
  • 建筑高度类型:单层建筑
  • 建筑设计面积:500平方米
  • 建筑地上层数:1层
  • 图纸设计深度:施工图
  • 参考图纸:10张
  • 设计年代:近代
  • 设计内容:空调
  • 冷热源:空气调节器
  • 空调系统:制冷剂系统
  • 送风方式:散流器送风
  • 项目所在地:北京

附件详情

本项目为宾馆空调项目,建筑面积约500平方米。
图纸内容有设计施工说明,图例及主要设备及材料表,空调平面图,装修设计布置图等。
该项目采用R410A环保冷媒型VRV变频多联式中央空调系统...

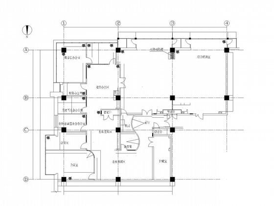
隔墙定位 平面布置图

平面布置图

综合天花布置图

宾馆装修设计施工图 - 1
第 1 张图
宾馆装修设计施工图 - 2
第 2 张图
宾馆装修设计施工图 - 3
第 3 张图
宾馆装修设计施工图 - 4
第 4 张图
以上是部分图纸截图,有些图框没有放大后再截图,可能截图里不清晰或者看不到内容,您可以在下载后查看具体内容

温馨提示:该资料由网友于2020-2-29 09:39:25上传分享,您可以下载该资料进行学习和参考,如有侵权内容或者违法行为,请及时联系站长删除,如有疑问,您可以在暖通空调专区发帖交流相关知识。

附件2099v11edecwcf10cwfc0ddcf2.rar

361.52 KB

下载  售价: 100 积分    赚积分

宾馆装修设计施工图相关帖子

回复

使用道具 举报

您需要登录后才可以回帖 登录 | 立即注册

本版积分规则

QQ|联系我们|豆豆网 ( 苏ICP备20004746号-1 )

GMT+8, 2025-12-17 00:24 , Processed in 0.015336 second(s), 27 queries .

本站所有内容均由网友自主分享,如有侵权内容或者违法行为,请及时联系站长删除,本站将根据实际情况进行积分奖励!请查看:免责声明

快速回复 返回顶部 返回列表