豆豆网

 找回密码
 立即注册

QQ登录

只需一步,快速开始

查看: 2652|回复: 0

一份11层酒店通风及防排烟系统设计CAD施工图纸(节能设计)

[复制链接]

0

主题

0

帖子

1596

积分

超级版主

Rank: 8Rank: 8

积分
1596
发表于 2020-2-29 10:01:33 | 显示全部楼层 |阅读模式

该帖子包含附件可供参考学习和下载,您可以 搜索 更多您想要的资源


  • 附件设计说明:有
  • 建筑类别:酒店
  • 建筑高度类型:高层建筑
  • 建筑地上层数:11层
  • 建筑地下层数:1层
  • 图纸设计深度:施工图
  • 参考图纸:15张
  • 设计年代:近代
  • 设计内容:通风,防排烟
  • 送风方式:散流器送风
  • 项目所在地:江西

附件详情

一、项目概要:

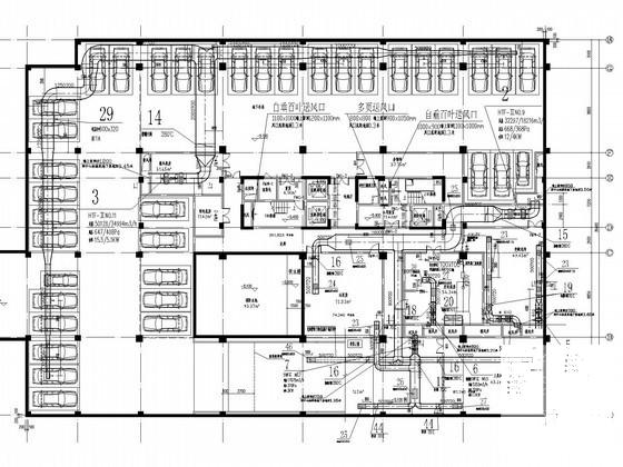
该项目位于江西省,是一个高层酒店建筑,地上十一层,地下一层。图纸内容包含设计施工说明,主要设备材料表及图例,排烟系统图,排风系统图,进风示意图,通风排烟平面图,通风平面图,屋顶风机布置平面图等...

二、通风排烟系统:

1.通风系统:地下室汽车库按防火分区各设机械排风系统.排风管兼排烟管共一条管道,平时排风.补风由汽车出入囗自然进风。地下室配电房.设置独立的机械送.排风系统。柴油机房.储油间设独立的排风系统.确保平时通风换气...

2.防排烟系统:.地下室汽车库分为一个防火分区.设备房(包括走廊)为一个防火分区.共计为2个防火分区;防烟分区采用隔墙或从顶棚下突出不小于0.5m的梁挡烟进行划分;地下室走廊设置机械排烟和送风系统.平时通风.火灾时排烟...


底层通风平面图

二层通风平面图

四层通风平面图

五~八层通风平面图

三层通风平面图

第 1 张图
第 1 张图
第 2 张图
第 2 张图
第 3 张图
第 3 张图
第 4 张图
第 4 张图
第 5 张图
第 5 张图
第 6 张图
第 6 张图
以上是部分图纸截图,有些图框没有放大后再截图,可能截图里不清晰或者看不到内容,您可以在下载后查看具体内容

温馨提示:该资料由网友于2020-2-29 10:01:33上传分享,您可以下载该资料进行学习和参考,如有侵权内容或者违法行为,请及时联系站长删除,如有疑问,您可以在酒店建筑专区发帖交流相关知识。

附件2099v11edecwf2ed2w1e00ddce.rar

1.61 MB

下载  售价: 100 积分    赚积分

相关帖子

回复

使用道具 举报

您需要登录后才可以回帖 登录 | 立即注册

本版积分规则

QQ|联系我们|豆豆网 ( 苏ICP备20004746号-1 )

GMT+8, 2025-12-19 14:03 , Processed in 0.014698 second(s), 27 queries .

本站所有内容均由网友自主分享,如有侵权内容或者违法行为,请及时联系站长删除,本站将根据实际情况进行积分奖励!请查看:免责声明

快速回复 返回顶部 返回列表