豆豆网

 找回密码
 立即注册

QQ登录

只需一步,快速开始

查看: 2323|回复: 0

一份大型高层商务酒店空调通风及防排烟系统设计CAD施工图纸(大院设计)(管道布置图)

[复制链接]

0

主题

0

帖子

1085

积分

超级版主

Rank: 8Rank: 8

积分
1085
发表于 2020-2-29 10:01:41 | 显示全部楼层 |阅读模式

该帖子包含附件可供参考学习和下载,您可以 搜索 更多您想要的资源


  • 附件设计说明:有
  • 建筑类别:商业,酒店
  • 建筑高度类型:高层建筑
  • 建筑设计面积:40303平方米
  • 建筑地上层数:17层
  • 建筑地下层数:1层
  • 图纸设计深度:施工图
  • 参考图纸:52张
  • 设计年代:近代
  • 设计内容:空调,通风,防排烟
  • 冷热源:电动压缩式冷水机组
  • 空调系统:全空气系统,空气-水系统
  • 送风方式:散流器送风
  • 项目所在地:陕西

附件详情

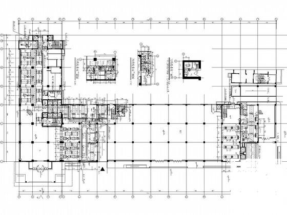
该项目位于陕西省,是一个大型高层商务酒店建筑,建筑面积为40303平米,地上17层,地下1层。图纸内容包含设计及施工说明,主要设备材料表及图例,空调系统的划分、组成及设计运行工况,制冷机房、换热间设备布置图,制冷机房、换热间管道布置图,制冷机房、换热间热力系统图,锅炉房、水泵间设备及管道布置图,裙房屋面动力设备间热力系统图,空调、通风、消防平面图,屋面设备面布置图,空调水管平面图,防烟系统平面放大图,地下室空调水管系统图,空调供回水立管系统图等...


二层空调、通风、消防平面图

三层空调、通风、消防平面图

二层空调水管平面

裙房屋面动力设备间热力系统图

五层空调、通风、消防平面图

制冷机房、换热间热力系统图

四层空调、通风、消防平面图

大型商务酒店 - 1
第 1 张图
大型商务酒店 - 2
第 2 张图
大型商务酒店 - 3
第 3 张图
大型商务酒店 - 4
第 4 张图
大型商务酒店 - 5
第 5 张图
大型商务酒店 - 6
第 6 张图
大型商务酒店 - 7
第 7 张图
大型商务酒店 - 8
第 8 张图
以上是部分图纸截图,有些图框没有放大后再截图,可能截图里不清晰或者看不到内容,您可以在下载后查看具体内容

温馨提示:该资料由网友于2020-2-29 10:01:41上传分享,您可以下载该资料进行学习和参考,如有侵权内容或者违法行为,请及时联系站长删除,如有疑问,您可以在酒店建筑专区发帖交流相关知识。

附件2099v11edecwsesf0f1dds2e0s.rar

5.39 MB

下载  售价: 100 积分    赚积分

大型商务酒店相关帖子

回复

使用道具 举报

您需要登录后才可以回帖 登录 | 立即注册

本版积分规则

QQ|联系我们|豆豆网 ( 苏ICP备20004746号-1 )

GMT+8, 2025-12-17 03:24 , Processed in 0.114376 second(s), 28 queries .

本站所有内容均由网友自主分享,如有侵权内容或者违法行为,请及时联系站长删除,本站将根据实际情况进行积分奖励!请查看:免责声明

快速回复 返回顶部 返回列表