豆豆网

 找回密码
 立即注册

QQ登录

只需一步,快速开始

查看: 3104|回复: 0

一份16层综合楼给排水CAD施工图纸(商业、办公、公寓)

[复制链接]

0

主题

0

帖子

1075

积分

超级版主

Rank: 8Rank: 8

积分
1075
发表于 2020-2-17 20:10:58 | 显示全部楼层 |阅读模式

该帖子包含附件可供参考学习和下载,您可以 搜索 更多您想要的资源


  • 附件设计说明:有
  • 建筑类别:住宅,办公,商业
  • 建筑高度类型:高层建筑
  • 建筑设计面积:62298.86平方米
  • 建筑地上层数:21层
  • 建筑地下层数:1层
  • 图纸设计深度:施工图
  • 参考图纸:42张
  • 设计年代:近代
  • 地下室用途:车库,设备用房
  • 生活供水设计:生活给水系统
  • 排水设计:污水系统,废水系统,雨水系统,机房排水
  • 消防设计:室内消火栓系统,喷淋系统
  • 供水设备:高位水箱
  • 供水方式:市政供水,分区供水
  • 供水分区:四区
  • 排水体制:污废合流
  • 排水技术:重力排水
  • 火灾危险等级:中危险级Ⅱ级,严重危险级Ⅰ级
  • 消火栓用水量室外(L/S):30
  • 消火栓用水量室内(L/S):40
  • 大样节点:水箱,水泵,泵房,卫生间,集水坑,阀门管件

附件详情

  • 给水排水设计总说明
  • 图例,使用标准图目录,主要材料表
  • 集水坑剖面,管井大样图
  • 消火栓系统原理图
  • 给水系统原理图
  • 自动喷淋系统原理图
  • 排水系统原理图
  • 雨水,冷凝水,阳台排水系统原理图
  • 地下室给排水,消防管道平面图
  • 地下室喷淋管道平面图
  • 给排水,消防管道平面图
  • 机房层给排水平面图
  • 公共卫生间大样图,管道系统图
  • 屋顶消防水箱详图
  • 消防泵房平,剖面图

附件详情

资料介绍:该项目地下一层为汽车库,层高为4.6m,地上三层裙房为商业、办公及展览大厅,一层层高5.1m,二~三层层高为4.5m。主楼1#、2#为办公楼,标准层层高3.5m,主楼3#四~二十一层为公寓楼,标准层层高为3.1m,1#建筑高度为95.7m,2#建筑高度为83.6m,3#建筑高度为76.4m,总建筑面积为:62298.86平方米 。
该项目地下车库(除不能用水补救的场所外)和商业部分,办公楼部分,公寓楼公共走廊部分采用湿式喷淋灭火系统,初期消防用水和室内消火栓系统共用屋顶高位水箱,消防水池和室内消火栓系统共用,地下室水泵房设专用喷淋水泵2台。湿式报警阀安装在地下室消防泵房内,报警阀前管道连成环状管网,在此环网上接水泵结合器3套。


设计内容:建筑物内的给水、排水、消防给水管道、自动喷水灭火系统及小型给水排水构筑物。室外管网及总水表井至城市给水管和该项目最后一个污水检查井至城市污水检查井之间的管道另行设计。系统设计等。


,图纸共43张。

雨水,冷凝水,阳台排水系统原理图

自动喷淋系统原理图

水箱系统图

消防泵房平面图

消防水池剖面图

公寓楼标准层喷淋管道平面图

机房层给排水,消防管道平面图

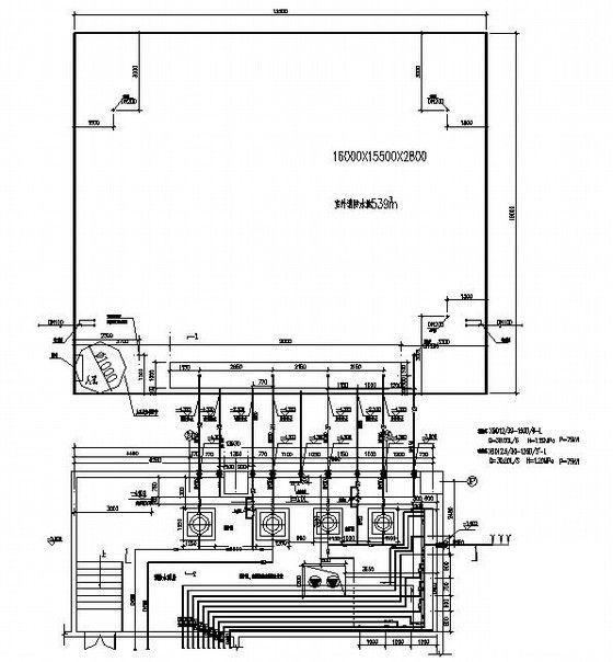
商业公寓给排水 - 1
第 1 张图
商业公寓给排水 - 2
第 2 张图
商业公寓给排水 - 3
第 3 张图
商业公寓给排水 - 4
第 4 张图
商业公寓给排水 - 5
第 5 张图
商业公寓给排水 - 6
第 6 张图
以上是部分图纸截图,有些图框没有放大后再截图,可能截图里不清晰或者看不到内容,您可以在下载后查看具体内容

温馨提示:该资料由网友于2020-2-17 20:10:58上传分享,您可以下载该资料进行学习和参考,如有侵权内容或者违法行为,请及时联系站长删除,如有疑问,您可以在给水排水专区发帖交流相关知识。

附件2099v11edc0fc21d20cc2csc0s.rar

6.47 MB

下载  售价: 100 积分    赚积分

商业公寓给排水相关帖子

回复

使用道具 举报

您需要登录后才可以回帖 登录 | 立即注册

本版积分规则

QQ|联系我们|豆豆网 ( 苏ICP备20004746号-1 )

GMT+8, 2025-12-28 04:05 , Processed in 0.016364 second(s), 27 queries .

本站所有内容均由网友自主分享,如有侵权内容或者违法行为,请及时联系站长删除,本站将根据实际情况进行积分奖励!请查看:免责声明

快速回复 返回顶部 返回列表