豆豆网

 找回密码
 立即注册

QQ登录

只需一步,快速开始

查看: 1621|回复: 0

6层住宅楼给排水设计CAD施工图纸及计算书

[复制链接]

0

主题

0

帖子

1359

积分

超级版主

Rank: 8Rank: 8

积分
1359
发表于 2020-3-1 15:33:01 | 显示全部楼层 |阅读模式

该帖子包含附件可供参考学习和下载,您可以 搜索 更多您想要的资源


  • 附件设计说明:有
  • 建筑类别:住宅
  • 建筑高度类型:多层建筑
  • 建筑设计面积:4890.08平方米
  • 建筑地上层数:6层
  • 建筑地下层数:1层
  • 图纸设计深度:施工图
  • 参考图纸:19张
  • 设计年代:近代
  • 地下室用途:车库
  • 生活供水设计:生活给水系统
  • 生产供水设计:热水系统
  • 排水设计:污水系统
  • 供水方式:市政供水
  • 供水分区:无
  • 排水体制:污废合流
  • 排水技术:重力排水
  • 消火栓用水量室外(L/S):20
  • 消火栓用水量室内(L/S):15

附件详情

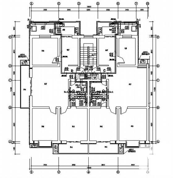
.室内给排水工程 .室外管网及贮水供水设施详见给排水总图设计.2.该资料供水管道做到出外墙3米处,污废水管道做道出外墙第一个检查井处.1.该项目为太原市xx小区3#住宅楼2.该项目总建筑面积为4890.08m ,为单元式住宅,共六层带一层地下室一层至六层层高 2.9m,地下室层高2.18m;建筑总高度为18.9m,室内外高差为1.000m3.住宅标准层平面共三个单元,一梯两户,总户数36户.

住宅给排水计算书 - 1
第 1 张图
住宅给排水计算书 - 2
第 2 张图
住宅给排水计算书 - 3
第 3 张图
住宅给排水计算书 - 4
第 4 张图
以上是部分图纸截图,有些图框没有放大后再截图,可能截图里不清晰或者看不到内容,您可以在下载后查看具体内容

温馨提示:该资料由网友于2020-3-1 15:33:01上传分享,您可以下载该资料进行学习和参考,如有侵权内容或者违法行为,请及时联系站长删除,如有疑问,您可以在给水排水专区发帖交流相关知识。

附件2099v11edc0c0fe1s0csd020s0.rar

708.49 KB

下载  售价: 100 积分    赚积分

住宅给排水计算书相关帖子

回复

使用道具 举报

您需要登录后才可以回帖 登录 | 立即注册

本版积分规则

QQ|联系我们|豆豆网 ( 苏ICP备20004746号-1 )

GMT+8, 2025-12-27 16:47 , Processed in 0.016279 second(s), 27 queries .

本站所有内容均由网友自主分享,如有侵权内容或者违法行为,请及时联系站长删除,本站将根据实际情况进行积分奖励!请查看:免责声明

快速回复 返回顶部 返回列表