豆豆网

 找回密码
 立即注册

QQ登录

只需一步,快速开始

查看: 3527|回复: 0

一份多层公共建筑空调通风排烟系统设计CAD施工图纸(风冷热泵)

[复制链接]

0

主题

0

帖子

1075

积分

超级版主

Rank: 8Rank: 8

积分
1075
发表于 2020-3-2 21:30:21 | 显示全部楼层 |阅读模式

该帖子包含附件可供参考学习和下载,您可以 搜索 更多您想要的资源


  • 附件设计说明:有
  • 建筑类别:办公
  • 建筑高度类型:多层建筑
  • 建筑设计面积:21903.13平方米
  • 图纸设计深度:施工图
  • 参考图纸:25张
  • 设计年代:近代
  • 设计内容:空调,通风,防排烟,冷热源
  • 冷热源:电动压缩式冷水机组
  • 空调系统:全空气系统,空气-水系统
  • 水系统:单式泵,变流量,双管制,异程式
  • 送风方式:散流器送风
  • 项目所在地:广东

附件详情

  • 设计施工说明
  • 防排烟及通风设备一览表
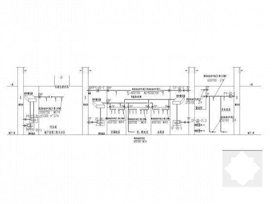
  • 通风平面图
  • 排风(烟)系统原理图
  • 内走道排烟系统原理图
  • 空调泵房管道大样平面图
  • 空调水平面图
  • 空调风平面图
  • ......

附件详情

一、项目概要:
建筑高度23.90米,属于新建多层公共建筑。总建筑面积21903.13m2......
二、冷热源:
选用2台全热回收风冷热泵,全热回收热量用于生活热水,非制冷季节可以直接制热提供生活热水,另选择两台风冷螺杆热泵机组为酒店空调提供冷热源......
三、空调系统:
冷冻水系统为一次泵两管制变流量系统。冷冻水竖管采用两管制异程系统;水平干管采用两管制同程式。
空调风系统包括:风机盘管加新风的空调系统,全空气系统。气流组织包括上送上回、侧送风上回风......
四、通风排烟系统:
地下室车库设有排风兼排烟系统。
变配电房、柴油发电机房全部采用气体自动灭火系统,故只设平时通风系统......

图纸共25张。

空调水系统原理图

内走道排烟系统原理图

排风(烟)系统原理图

空调水平面图

公共建筑施工图设计 - 1
第 1 张图
公共建筑施工图设计 - 2
第 2 张图
公共建筑施工图设计 - 3
第 3 张图
公共建筑施工图设计 - 4
第 4 张图
公共建筑施工图设计 - 5
第 5 张图
以上是部分图纸截图,有些图框没有放大后再截图,可能截图里不清晰或者看不到内容,您可以在下载后查看具体内容

温馨提示:该资料由网友于2020-3-2 21:30:21上传分享,您可以下载该资料进行学习和参考,如有侵权内容或者违法行为,请及时联系站长删除,如有疑问,您可以在暖通空调专区发帖交流相关知识。

附件2099v11ede2dwc0scwecsc01fc.rar

6.66 MB

下载  售价: 100 积分    赚积分

公共建筑施工图设计相关帖子

回复

使用道具 举报

您需要登录后才可以回帖 登录 | 立即注册

本版积分规则

QQ|联系我们|豆豆网 ( 苏ICP备20004746号-1 )

GMT+8, 2025-12-28 23:00 , Processed in 0.016244 second(s), 27 queries .

本站所有内容均由网友自主分享,如有侵权内容或者违法行为,请及时联系站长删除,本站将根据实际情况进行积分奖励!请查看:免责声明

快速回复 返回顶部 返回列表