豆豆网

 找回密码
 立即注册

QQ登录

只需一步,快速开始

查看: 1659|回复: 0

一份普通高层住户楼给排水CAD施工图纸(11层)

[复制链接]

0

主题

0

帖子

1358

积分

超级版主

Rank: 8Rank: 8

积分
1358
发表于 2020-3-2 21:30:29 | 显示全部楼层 |阅读模式

该帖子包含附件可供参考学习和下载,您可以 搜索 更多您想要的资源


  • 附件设计说明:有
  • 建筑类别:住宅
  • 建筑高度类型:高层建筑
  • 建筑设计面积:7434.12平方米
  • 建筑地上层数:11层
  • 图纸设计深度:施工图
  • 参考图纸:22张
  • 设计年代:近代
  • 地下室用途:车库
  • 生活供水设计:生活给水系统
  • 生产供水设计:热水系统
  • 排水设计:污水系统,废水系统,雨水系统,消防排水
  • 供水方式:市政供水
  • 排水体制:污废合流,雨污分流
  • 排水技术:重力排水
  • 大样节点:泵房
  • 热水供应方式:集中热水供应
  • 项目所在地:广东

附件详情

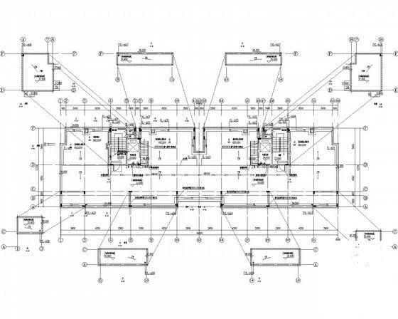
  • 首层给排水平面图
  • 二层给排水平面图
  • 三至十一层给排水平面图
  • 天面层给排水平面图
  • 给排水系统图
  • 屋顶给排水平面图
  • 泵房大样图

附件详情

项目概要:该项目一共包括4栋住宅楼,为普通高层住宅。7、8#建筑总建筑面积5519.85m ,建筑总高度33m。5#建筑建筑面积7434.12m,建筑总高度33m 。6#建筑总建筑面积7142.28m,建筑总高度33m。
设计内容:给水系统、热水系统、排水系统、消防排水等内容。编制依据为《民用建筑节水设计规范》GB50555-近代、《住宅设计规范》 GB50096-近代以及《建筑给水排水制图标准》GB/T 50106-近代等。
,共22张图。

天面层给排水平面图

屋顶给排水平面图

给排水系统图(二)

泵房大样图

第 1 张图
第 1 张图
第 2 张图
第 2 张图
第 3 张图
第 3 张图
第 4 张图
第 4 张图
第 5 张图
第 5 张图
以上是部分图纸截图,有些图框没有放大后再截图,可能截图里不清晰或者看不到内容,您可以在下载后查看具体内容

温馨提示:该资料由网友于2020-3-2 21:30:29上传分享,您可以下载该资料进行学习和参考,如有侵权内容或者违法行为,请及时联系站长删除,如有疑问,您可以在给水排水专区发帖交流相关知识。

附件2099v11edc0dc1eff1c1220dde.rar

4.95 MB

下载  售价: 100 积分    赚积分

相关帖子

回复

使用道具 举报

您需要登录后才可以回帖 登录 | 立即注册

本版积分规则

QQ|联系我们|豆豆网 ( 苏ICP备20004746号-1 )

GMT+8, 2025-12-22 05:20 , Processed in 0.019197 second(s), 27 queries .

本站所有内容均由网友自主分享,如有侵权内容或者违法行为,请及时联系站长删除,本站将根据实际情况进行积分奖励!请查看:免责声明

快速回复 返回顶部 返回列表