豆豆网

 找回密码
 立即注册

QQ登录

只需一步,快速开始

查看: 2935|回复: 0

一份公司配送中心厂房采暖通风设计CAD图纸

[复制链接]

0

主题

0

帖子

1642

积分

超级版主

Rank: 8Rank: 8

积分
1642
发表于 2020-3-14 15:19:29 | 显示全部楼层 |阅读模式

该帖子包含附件可供参考学习和下载,您可以 搜索 更多您想要的资源


  • 附件设计说明:无
  • 建筑类别:工业建筑
  • 图纸设计深度:扩初图
  • 参考图纸:4张
  • 设计年代:近代
  • 设计内容:通风,采暖

附件详情

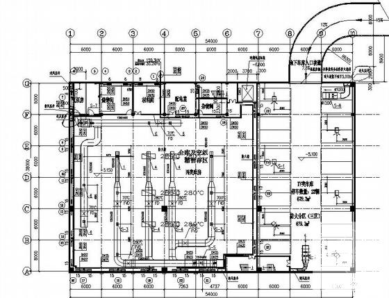
该项目为武威市某公司物流配送中心改扩建工程,图纸为各层采暖通风平面图及泵房采暖平面图。

厂房采暖通风 - 1
第 1 张图
厂房采暖通风 - 2
第 2 张图
厂房采暖通风 - 3
第 3 张图
以上是部分图纸截图,有些图框没有放大后再截图,可能截图里不清晰或者看不到内容,您可以在下载后查看具体内容

温馨提示:该资料由网友于2020-3-14 15:19:29上传分享,您可以下载该资料进行学习和参考,如有侵权内容或者违法行为,请及时联系站长删除,如有疑问,您可以在暖通空调专区发帖交流相关知识。

附件2099v11ede2cf0cww10se11csc.rar

383.25 KB

下载  售价: 100 积分    赚积分

厂房采暖通风相关帖子

回复

使用道具 举报

您需要登录后才可以回帖 登录 | 立即注册

本版积分规则

QQ|联系我们|豆豆网 ( 苏ICP备20004746号-1 )

GMT+8, 2025-12-30 18:11 , Processed in 0.033910 second(s), 27 queries .

本站所有内容均由网友自主分享,如有侵权内容或者违法行为,请及时联系站长删除,本站将根据实际情况进行积分奖励!请查看:免责声明

快速回复 返回顶部 返回列表