豆豆网

 找回密码
 立即注册

QQ登录

只需一步,快速开始

查看: 2499|回复: 0

欧式现代小区26层住宅楼建筑施工CAD图纸

[复制链接]

0

主题

0

帖子

1352

积分

超级版主

Rank: 8Rank: 8

积分
1352
发表于 2020-1-21 22:26:58 | 显示全部楼层 |阅读模式

该帖子包含附件可供参考学习和下载,您可以 搜索 更多您想要的资源


  • 住宅类型(型体):塔式(一梯4户以下)
  • 商业:无
  • 建筑高度:高层建筑
  • 建筑结构形式:钢筋混凝土结构
  • 钢筋混凝土结构:剪力墙
  • 图纸设计深度:施工图
  • 项目地址:湖南
  • 图纸设计风格:欧陆风格
  • 图纸设计流派:新古典
  • 图纸设计格式:天正建筑CAD 7.0,CAD2000
  • 建筑设计面积:19962.64平方米
  • 占地面积:762.55平方米
  • 建筑高度:88.70m
  • 地上层数:26层
  • 地下层数:2层
  • 设计效果图:无

附件详情

工程为住宅楼,上部2个住宅单元,底部1层架空,局部2层地下室,结构类型:剪力墙结构
抗震设防烈度:6度
防火分类:一类高层
耐火等级:一级
总建筑设计面积:19962.64平方米
建筑占地面积:762.55平方米
建筑高度:88.70米
建筑层数:1+26F
建筑层高:3米


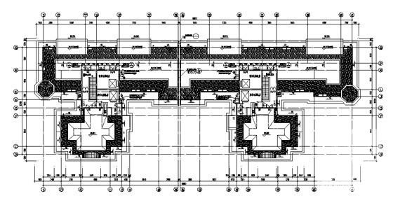
平面

总图

机房层平面图

总图

欧式住宅建筑 - 1
第 1 张图
欧式住宅建筑 - 2
第 2 张图
欧式住宅建筑 - 3
第 3 张图
欧式住宅建筑 - 4
第 4 张图
欧式住宅建筑 - 5
第 5 张图
以上是部分图纸截图,有些图框没有放大后再截图,可能截图里不清晰或者看不到内容,您可以在下载后查看具体内容

温馨提示:该资料由网友于2020-1-21 22:26:58上传分享,您可以下载该资料进行学习和参考,如有侵权内容或者违法行为,请及时联系站长删除,如有疑问,您可以在居住建筑专区发帖交流相关知识。

附件2099v11ed1cddswcf1c0s121dc.rar

8.67 MB

下载  售价: 100 积分    赚积分

欧式住宅建筑相关帖子

回复

使用道具 举报

您需要登录后才可以回帖 登录 | 立即注册

本版积分规则

QQ|联系我们|豆豆网 ( 苏ICP备20004746号-1 )

GMT+8, 2025-12-28 16:49 , Processed in 0.016005 second(s), 28 queries .

本站所有内容均由网友自主分享,如有侵权内容或者违法行为,请及时联系站长删除,本站将根据实际情况进行积分奖励!请查看:免责声明

快速回复 返回顶部 返回列表