| 
 该帖子包含附件可供参考学习和下载,您可以 搜索 更多您想要的资源   
 
  
   附件详情
   
  
   - 
    第一章 概述
   
 
   - 
    1.1.编制范围
   
 
   - 
    1.2.编制依据
   
 
   - 
    1.3.编制原则
   
 
   - 
    第二章 项目概要
   
 
   - 
    2.1工程概述
   
 
   - 
    2.1.1.设计构造及桥位布置
   
 
   - 
    2.1.2 .主要技术标准
   
 
   - 
    2.1.3 .工程地质资料
   
 
   - 
    2.1.4.气象资料
   
 
   - 
    2.1.5.地震资料
   
 
   - 
    2.1.6.主要工程数量
   
 
   - 
    2.2. 施工条件
   
 
   - 
    2.2.1.交通运输情况
   
 
   - 
    2.2.2 .沿线水源、电源、燃料等可资利用的情况
   
 
   - 
    2.2.3.当地建筑材料的分布情况
   
 
   - 
    2.2.4.其他与施工有关的情况
   
 
   - 
    2.3 .工程特点
   
 
   - 
    第三章 施工方案
   
 
   - 
    3.1.工期目标
   
 
   - 
    3.2.施工平面布置
   
 
   - 
    3.3.跨XX高速施工防护方案及措施
   
 
   - 
    3.3.1.梁段悬浇时挂篮全封闭方案
   
 
   - 
    3.3.2.已完成梁段防护方案
   
 
   - 
    3.3.3.限速标识牌
   
 
   - 
    3.3.4.安装夜间警示灯
   
 
   - 
    3.3.5.安全技术保障措施
   
 
   - 
    3.4.主要施工方法和工艺
   
 
   - 
    3.4.1.0#段施工方法及工艺
   
 
   - 
    3.4.2.0#段螺旋管支架施工设计及验算
   
 
   - 
    3.4.3.螺旋管支架加载试验
   
 
   - 
    3.4.4.现浇0号段施工
   
 
   - 
    3.4.5.挂篮悬灌梁段施工
   
 
   - 
    3.4.6.边跨直线段施工
   
 
   - 
    3.4.7.合拢段的施工
   
 
   - 
    3.4.8.通长束的留孔、穿索、张拉、压浆
   
 
   - 
    3.5.悬臂浇筑梁的线性控制方案和变形控制技术
   
 
   - 
    3.5.1.悬臂浇筑梁的线性控制方案
   
 
   - 
    3.5.2.大跨连续梁变形控制技术
   
 
   - 
    3.6.施工
    
     进度计划
    
   
 
   - 
    3.7.施工组织
   
 
   - 
    3.8.主要机械设备配置
   
 
   - 
    第四章 应急预案
   
 
   - 
    4.1.目的
   
 
   - 
    4.2.组织机构
   
 
   - 
    4.3.启动条件
   
 
   - 
    4.4.应急措施和职责分工
   
 
   - 
    4.4.1.应急措施
   
 
   - 
    4.4.2.职责分工
   
 
   - 
    4.5 .应急物资储备
   
 
   - 
    4.6 .预案终结
   
 
   - 
    第五章 夏期、冬期施工措施
   
 
   - 
    5.1.夏期施工措施
   
 
   - 
    5.5.1.原材料温度控制
   
 
   - 
    5.5.2.混凝土的搅拌
   
 
   - 
    5.5.3.混凝土的运输
   
 
   - 
    5.5.4.混凝土的浇筑
   
 
   - 
    5.5.5.混凝土的修整
   
 
   - 
    5.5.6.混凝土养护措施
   
 
   - 
    5.2 .冬期施工措施
   
 
   - 
    第六章 安全保证体系及措施
   
 
   - 
    6.1.安全目标
   
 
   - 
    6.2.安全保证体系及组织机构
   
 
   - 
    6.3.安全管理制度
   
 
   - 
    6.3.1.安全生产责任制
   
 
   - 
    6.3.2.安全教育培训制度
   
 
   - 
    6.3.3.特殊工种持证上岗作业制度
   
 
   - 
    6.3.4.安全检查制度
   
 
   - 
    6.3.5.机械设备安全管理制度
   
 
   - 
    6.3.6.高空作业安全管理制度
   
 
   - 
    6.3.7.安全事故申报制度
   
 
   - 
    6.3.8.施工现场临时用电安全管理制度和消防安全管理制度
   
 
   - 
    6.3.9.防火、防风安全制度
   
 
   - 
    6.3.10.施工现场设置安全标志制度
   
 
   - 
    6.4.安全保证措施
   
 
   - 
    6.4.1.安全生产教育与培训
   
 
   - 
    6.4.2.安全
    
     技术交底
    
   
 
   - 
    6.4.3.加强现场管理,促进安全生产
   
 
   - 
    6.4.4.积极推行安全质量标准工地建设
   
 
   - 
    6.4.5.注重技术安全,抓好方案论证
   
 
   - 
    6.4.6.消防保证措施
   
 
   - 
    6.4.7.安全检查
   
 
   - 
    6.5安全施工技术措施
   
 
   - 
    6.5.1.施工现场的安全技术措施
   
 
   - 
    6.5.2.施工机械施工安全技术措施
   
 
   - 
    6.5.3.塔吊防倾覆的措施
   
 
   - 
    第七章 质量保证体系及措施
   
 
   - 
    7.1.质量目标
   
 
   - 
    7.2.质量保证体系及组织机构
   
 
   - 
    7.3.质量管理制度
   
 
   - 
    7.4 .质量保证技术措施
   
 
   - 
    7.4.1.物资和原材料
    
     质量控制
    
    措施
   
 
   - 
    7.4.2.保证工程质量的技术措施
   
 
   - 
    第八章 工期保证措施
   
 
   - 
    第九章 环境保护措施
   
 
   - 
    9.1.环境保护目标
   
 
   - 
    9.2.环境保护体系
   
 
   - 
    9.3.环境保护措施
   
 
   - 
    9.4.文明施工措施
   
 
   
  
 
  
   附件详情
   
  
   【项目概要】
    
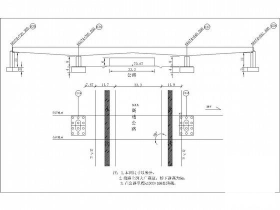
   特大桥跨高速(48+80+48)m连续梁,全长177.5米,跨越高速,下部构造为钻孔灌注桩基础,主墩和边墩均为矩形承台,圆端形墩柱,墩高从635#到638#分别为11m、8m、8m和11m,为跨越XX高速而设,施工时保证净宽34m,净高6m。主跨连续梁采用悬臂浇筑法施工,连续梁全长177.5m,跨径为(48+80+48)m。
    
   梁体为单箱单室,变高度,变截面结构,中支点梁高6.65m,边跨7.75m直线段梁高为3.85m。箱梁顶宽13.4m,底宽6.7m。
    
   【主要技术标准】
    
   铁路等级:客运专线;正线数目:双线
    
   速度目标值:350km/h;平面位于直线上,线间距5.0m,纵坡G=5.0‰牵引种类:电力;机车类型:动车组
    
   列车运行控制方式:自动控制;行车指挥方式:综合调度集中
    
   【工期目标】
    
   梁部施工拟定在10月9开始施工,4月30主体施工完成。
    
   【内容节选】
    
   梁段悬浇时挂篮全封闭方案
    
   为了确保施工和XX高速行车安全,考虑各方面的因素及制约条件,计划对施工作业挂篮采取全封闭的防护措施。将挂篮底面、前面、两侧面全部封闭,并对已浇筑梁段挂篮后锚范围内进行全封闭,防止梁段施工及挂篮走行期间杂物或构件掉落到XX高速路面,对XX高速行车造成安全事故。
    
   ⑴操作平台:在挂篮底模位置焊接牛腿,搭设长1.5m操作平台,由∠7.5角钢及1.2mm钢板形成挂篮前端第一道屏障(高1.5m)。
    
   ……
    
   主要施工方法和工艺
    
   用挂篮逐段浇筑施工的工艺程序为:安装预压支架→施工0#段→张拉并锚固竖向预应力束→拼装挂篮→施工1#(1′)段→张拉并锚固纵向及竖向预应力束→挂篮前移、调整、锚固→施工下一梁段→依次完成各段悬臂施工→施工边跨直线段→拆除边跨挂篮→边垮合拢→拆除中跨挂篮→中跨合拢→拱部施工。为了缩短施工时间,混凝土浇筑采用一次浇筑成形,先浇底板、腹板,后浇顶板。
    
   ……
    
   共计109页(20)
    
    
   
  
   
  
   
    连续梁与XX高速立交示意图
    
   
    施工
    
     平面布置图
    
    
   
    636#墩位与XX高速位置关系
    
   
    连续梁现浇过程全封闭安全防护正面图
    
   
    连续梁现浇过程全封闭安全防护侧面图
    
   
    连续梁拱现浇过程全封闭正面图
    
   
    连续梁拱现浇过程全封闭侧面图
    
   
    连续梁拱现浇过程全封闭全景图
    
   
    连续梁悬臂浇筑施工工艺框图
    
   
    螺旋管支撑
    
   
    临时固结布置图
    
   
    菱形挂蓝构造示意图
    
   
    大跨连续梁线型控制计算流程
    
   
  
 
第 1 张图   
第 2 张图   
第 3 张图   
第 4 张图   
第 5 张图   
第 6 张图   以上是部分图纸截图,有些图框没有放大后再截图,可能截图里不清晰或者看不到内容,您可以在下载后查看具体内容 
 
 温馨提示:该资料由网友于2020-4-7 20:29:26上传分享,您可以下载该资料进行学习和参考,如有侵权内容或者违法行为,请及时联系站长删除,如有疑问,您可以在方案设计专区发帖交流相关知识。
 
	
 |