豆豆网

 找回密码
 立即注册

QQ登录

只需一步,快速开始

查看: 539|回复: 0

一份地上1层钢框架结构小区入口大门结构CAD施工图纸(建筑图纸)

[复制链接]

0

主题

0

帖子

1831

积分

超级版主

Rank: 8Rank: 8

积分
1831
发表于 2020-2-9 20:56:09 | 显示全部楼层 |阅读模式

该帖子包含附件可供参考学习和下载,您可以 搜索 更多您想要的资源


  • 建筑类别:交通建筑
  • 厂房建筑高度类型:单层厂房
  • 建筑地上层数:1层
  • 图纸设计深度:施工图
  • 民用建筑设计使用年限:50年
  • 建筑设计结构形式:钢结构
  • 钢结构:轻钢结构
  • 基础形式 :独立基础
  • 结构安全等级:二级
  • 地基基础设计等级:丙级
  • 抗震设防烈度:7度抗震
  • 风压:0.45kN/平方米
  • 雪压:0.40kN/平方米
  • 参考图纸:11张
  • 设计年代:近代

附件详情

该项目是小区入口大门项目,一层钢框架结构,总建筑面积77.82平方米,基础形式为柱下独立基础,基底下采用三七灰土垫层法处理地基。基础设计等级为丙级,抗震设防烈度为7度。
结构专业该资料包含: 结构设计说明 ,基础图,基础顶面抗剪键大样图,柱布置图,钢梁布置图,板配筋图, 节点详图 等共计5张图。
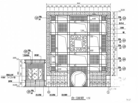
建筑专业该资料包含:建筑设计总说明,建筑节能设计专篇,装修构造做法,平面图,立面图,剖面图,节点大样图等共计6张图。
分享投稿时间:近几年1月。

基础 平面布置图

基础顶~屋面柱平面布置图

底层平面图

节点大样图

钢梁平面布置图

小区大门建筑施工图 - 1
第 1 张图
小区大门建筑施工图 - 2
第 2 张图
小区大门建筑施工图 - 3
第 3 张图
小区大门建筑施工图 - 4
第 4 张图
小区大门建筑施工图 - 5
第 5 张图
小区大门建筑施工图 - 6
第 6 张图
以上是部分图纸截图,有些图框没有放大后再截图,可能截图里不清晰或者看不到内容,您可以在下载后查看具体内容

温馨提示:该资料由网友于2020-2-9 20:56:09上传分享,您可以下载该资料进行学习和参考,如有侵权内容或者违法行为,请及时联系站长删除,如有疑问,您可以在建筑施工专区发帖交流相关知识。

附件2099v11edfc2c1ddc002sscdc0.rar

1.89 MB

下载  售价: 100 积分    赚积分

小区大门建筑施工图相关帖子

回复

使用道具 举报

您需要登录后才可以回帖 登录 | 立即注册

本版积分规则

QQ|联系我们|豆豆网 ( 苏ICP备20004746号-1 )

GMT+8, 2025-12-21 05:31 , Processed in 0.017804 second(s), 27 queries .

本站所有内容均由网友自主分享,如有侵权内容或者违法行为,请及时联系站长删除,本站将根据实际情况进行积分奖励!请查看:免责声明

快速回复 返回顶部 返回列表