豆豆网

 找回密码
 立即注册

QQ登录

只需一步,快速开始

查看: 646|回复: 0

一份震后重建体育馆结构CAD施工图纸(钢桁架屋盖)

[复制链接]

0

主题

0

帖子

1597

积分

超级版主

Rank: 8Rank: 8

积分
1597
发表于 2020-2-10 16:28:00 | 显示全部楼层 |阅读模式

该帖子包含附件可供参考学习和下载,您可以 搜索 更多您想要的资源


  • 建筑类别:体育
  • 建筑高度类型:单层建筑
  • 建筑地上层数:1层
  • 图纸设计深度:施工图
  • 民用建筑设计使用年限:50年
  • 建筑设计结构形式:钢筋混凝土结构
  • 钢筋混凝土结构:框架
  • 钢结构:桁架
  • 基础形式 :独立基础
  • 结构安全等级:二级
  • 地基基础设计等级:丙级
  • 抗震设防烈度:7度抗震
  • 风压:0.30kN/平方米
  • 雪压:0.15kN/平方米
  • 参考图纸:17张
  • 设计年代:近代

附件详情

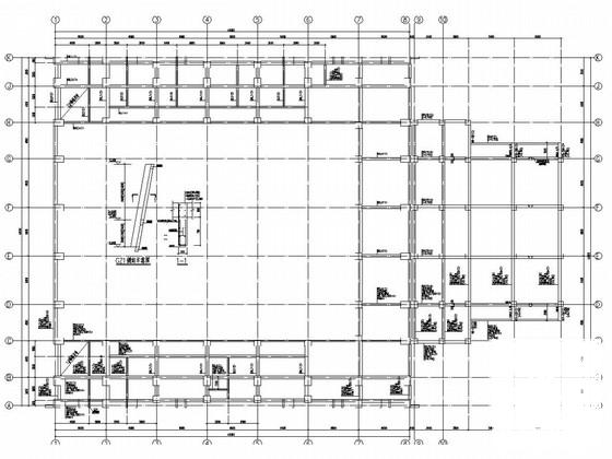
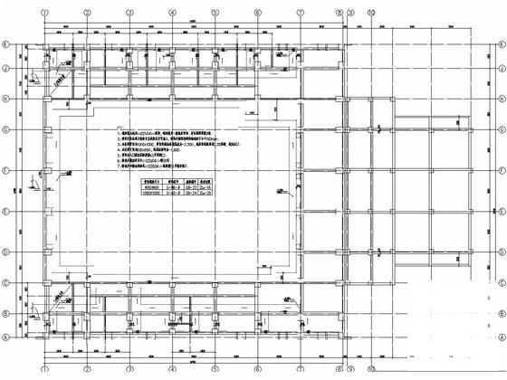
该项目是青海省震后重建某体育场馆项目,地上一层采用全现浇混凝土框架结构,屋盖采用双向正交正放桁架体系组成的网架,四周及屋面围护采用EPS彩钢隔热夹芯板,抗震设防烈度为7度,采用独立基础。
包括:结构设计总说明,结构基础布置图,框架柱平法施工图,框架柱模板图及详图,地梁平法施工图,梁平法施工图,板平法施工图,结构平法施工图,山墙结构示意图,钢桁架屋面上弦支撑 平面布置图 ,屋架檩条、拉条布置图,钢桁架立面示意图等共计17张图。
2月。

标高地梁平法施工图

山墙结构示意图

模板图

地沟平面图

屋架檩条、拉条布置图

钢桁架结构体育馆 - 1
第 1 张图
钢桁架结构体育馆 - 2
第 2 张图
钢桁架结构体育馆 - 3
第 3 张图
钢桁架结构体育馆 - 4
第 4 张图
钢桁架结构体育馆 - 5
第 5 张图
钢桁架结构体育馆 - 6
第 6 张图
以上是部分图纸截图,有些图框没有放大后再截图,可能截图里不清晰或者看不到内容,您可以在下载后查看具体内容

温馨提示:该资料由网友于2020-2-10 16:28:00上传分享,您可以下载该资料进行学习和参考,如有侵权内容或者违法行为,请及时联系站长删除,如有疑问,您可以在建筑施工专区发帖交流相关知识。

附件2099v11edfcc2wscfsd00df2cf.rar

1.57 MB

下载  售价: 100 积分    赚积分

钢桁架结构体育馆相关帖子

回复

使用道具 举报

您需要登录后才可以回帖 登录 | 立即注册

本版积分规则

QQ|联系我们|豆豆网 ( 苏ICP备20004746号-1 )

GMT+8, 2025-12-28 01:12 , Processed in 0.016717 second(s), 28 queries .

本站所有内容均由网友自主分享,如有侵权内容或者违法行为,请及时联系站长删除,本站将根据实际情况进行积分奖励!请查看:免责声明

快速回复 返回顶部 返回列表