豆豆网

 找回密码
 立即注册

QQ登录

只需一步,快速开始

查看: 3098|回复: 0

一份2层幼儿园建筑结构电气设备CAD施工图纸

[复制链接]

0

主题

0

帖子

1831

积分

超级版主

Rank: 8Rank: 8

积分
1831
发表于 2020-2-10 17:04:31 | 显示全部楼层 |阅读模式

该帖子包含附件可供参考学习和下载,您可以 搜索 更多您想要的资源


  • 建筑风格:现代
  • 建筑类别:幼儿园
  • 建筑高度类型:多层建筑
  • 图纸设计深度:施工图
  • 项目所在地:山东
  • 图纸设计风格:现代风格
  • 图纸设计流派:现代
  • 图纸设计格式:天正建筑CAD 7.0,CAD2000
  • 建筑设计面积:1089.62平方米
  • 建筑高度:10.15m
  • 建筑地上层数:2层
  • 设计效果图:无

附件详情

1.该项目为华夏·xx阳光花园幼儿园,建设单位济南华xx龙房地产开发有限公司。
2.该项目总建筑面积为1089.62m2,该项目层数为二层,功能为幼儿园,层高为3.6米。
建筑高度为10.15米。,耐火等级为二级,屋面防水等级为二级,抗震设防烈度为六度。
3.该项目设计相对标高%%P0.000的绝对标高见竖向,平面定位见总图,一层室内外高差见一层平面图。

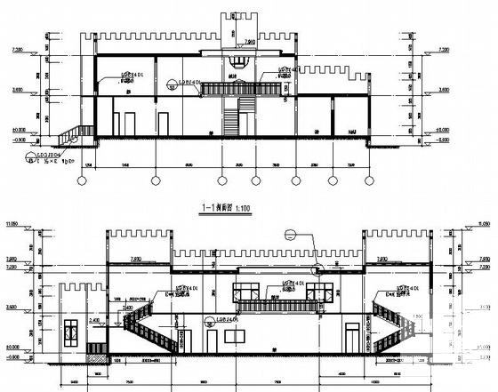
幼儿园电气设备 - 1
第 1 张图
幼儿园电气设备 - 2
第 2 张图
幼儿园电气设备 - 3
第 3 张图
幼儿园电气设备 - 4
第 4 张图
以上是部分图纸截图,有些图框没有放大后再截图,可能截图里不清晰或者看不到内容,您可以在下载后查看具体内容

温馨提示:该资料由网友于2020-2-10 17:04:31上传分享,您可以下载该资料进行学习和参考,如有侵权内容或者违法行为,请及时联系站长删除,如有疑问,您可以在电气工程专区发帖交流相关知识。

附件2099v11edsw1ddc1defds1se02.rar

1.89 MB

下载  售价: 100 积分    赚积分

幼儿园电气设备相关帖子

回复

使用道具 举报

您需要登录后才可以回帖 登录 | 立即注册

本版积分规则

QQ|联系我们|豆豆网 ( 苏ICP备20004746号-1 )

GMT+8, 2025-11-25 13:48 , Processed in 0.021480 second(s), 27 queries .

本站所有内容均由网友自主分享,如有侵权内容或者违法行为,请及时联系站长删除,本站将根据实际情况进行积分奖励!请查看:免责声明

快速回复 返回顶部 返回列表