豆豆网

 找回密码
 立即注册

QQ登录

只需一步,快速开始

查看: 623|回复: 0

一份39层框架核心筒办公楼结构CAD施工图纸(7度抗震)

[复制链接]

0

主题

0

帖子

1577

积分

超级版主

Rank: 8Rank: 8

积分
1577
发表于 2020-2-11 11:12:06 | 显示全部楼层 |阅读模式

该帖子包含附件可供参考学习和下载,您可以 搜索 更多您想要的资源


  • 建筑类别:办公

  • 建筑高度类型:超高层建筑

  • 建筑地上层数:39层

  • 建筑地下层数:3层

  • 图纸设计深度:施工图

  • 民用建筑设计使用年限:50年

  • 建筑设计结构形式:钢筋混凝土结构

  • 钢筋混凝土结构:框架核心筒

  • 基础形式 :筏形基础,桩基础

  • 结构安全等级:二级

  • 地基基础设计等级:甲级

  • 结构最大跨度:00.3m

  • 抗震设防烈度:7度抗震

  • 风压:0.45kN/平方米

  • 雪压:0.4kN/平方米

  • 地下室功能:车库

  • 参考图纸:68张

  • 设计年代:近代

附件详情

该项目为39层框架核心筒办公楼。结构主体高151m,7度抗震设防。包括:结构设计总说明,各层柱及核心筒剪力墙布置图,柱表,墙肢表,各层楼板模板图,各层梁板配筋图,各层平法施工图,楼梯详图等共计68张图纸。(无基础图)

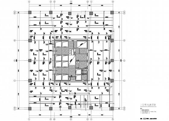
屋面层x向梁平法施工图

柱及剪力墙平法施工图

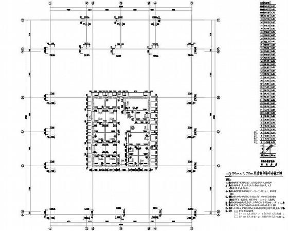
楼梯结构平面图

第 1 张图
第 1 张图
第 2 张图
第 2 张图
第 3 张图
第 3 张图
第 4 张图
第 4 张图
以上是部分图纸截图,有些图框没有放大后再截图,可能截图里不清晰或者看不到内容,您可以在下载后查看具体内容

温馨提示:该资料由网友于2020-2-11 11:12:06上传分享,您可以下载该资料进行学习和参考,如有侵权内容或者违法行为,请及时联系站长删除,如有疑问,您可以在建筑施工专区发帖交流相关知识。

附件2099v11edfccc1fscwcsc21cfe.rar

6.01 MB

下载  售价: 100 积分    赚积分

相关帖子

回复

使用道具 举报

您需要登录后才可以回帖 登录 | 立即注册

本版积分规则

QQ|联系我们|豆豆网 ( 苏ICP备20004746号-1 )

GMT+8, 2025-12-21 02:26 , Processed in 0.015353 second(s), 27 queries .

本站所有内容均由网友自主分享,如有侵权内容或者违法行为,请及时联系站长删除,本站将根据实际情况进行积分奖励!请查看:免责声明

快速回复 返回顶部 返回列表