豆豆网

 找回密码
 立即注册

QQ登录

只需一步,快速开始

查看: 2732|回复: 0

一份7层住宅楼建筑给排水CAD施工图纸

[复制链接]

0

主题

0

帖子

1470

积分

超级版主

Rank: 8Rank: 8

积分
1470
发表于 2020-2-16 11:16:05 | 显示全部楼层 |阅读模式

该帖子包含附件可供参考学习和下载,您可以 搜索 更多您想要的资源


  • 附件设计说明:有
  • 建筑类别:住宅
  • 建筑高度类型:多层建筑
  • 建筑设计结构形式:钢筋混凝土结构
  • 建筑设计面积:5400平方米
  • 建筑地上层数:7层
  • 图纸设计深度:施工图
  • 参考图纸:22张
  • 设计年代:近代
  • 生活供水设计:生活给水系统
  • 排水设计:污水系统,废水系统,雨水系统
  • 消防设计:室外消火栓系统,室内消火栓系统
  • 供水设备:高位水箱
  • 供水方式:市政供水
  • 供水分区:两区
  • 排水体制:污废合流,雨污分流
  • 排水技术:重力排水
  • 火灾危险等级:轻危险级
  • 消火栓用水量室外(L/S):15
  • 消火栓用水量室内(L/S):10
  • 大样节点:卫生间
  • 热水供应方式:集中热水供应

附件详情

  • 给排水设计总说明
  • 资料目录 图例
  • 主要设备材料表
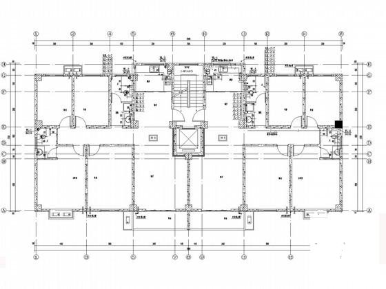
  • 一层给排水平面图
  • 二层给排水平面图
  • 三层给排水平面图
  • 四层给排水平面图
  • 五-六层给排水平面图
  • 七层给排水平面图
  • 屋顶层排水平面图
  • 户型给排水大样图、预留洞图
  • 给水支管系统图
  • 污水支管系统图
  • 服务网点卫生间给排水大样图、系统图
  • G户型冷水系统
  • G户型热水系统图
  • G户型污水系统图
  • 消防卷盘系统原理图

附件详情

该项目位于福建,该项目为多层建筑,包含有2栋建筑,建筑高度23.25m,总建筑面积5400平米。
设计范围:给水系统、排水系统、消防给水系统、热水系统、喷淋系统、雨水系统等;
,共计22张图纸;


一层给排水平面图

户型给排水大样及预留洞图

卫生间给排水大样图

冷水、热水系统图

户型污水系统图

第 1 张图
第 1 张图
第 2 张图
第 2 张图
第 3 张图
第 3 张图
第 4 张图
第 4 张图
第 5 张图
第 5 张图
第 6 张图
第 6 张图
以上是部分图纸截图,有些图框没有放大后再截图,可能截图里不清晰或者看不到内容,您可以在下载后查看具体内容

温馨提示:该资料由网友于2020-2-16 11:16:05上传分享,您可以下载该资料进行学习和参考,如有侵权内容或者违法行为,请及时联系站长删除,如有疑问,您可以在给水排水专区发帖交流相关知识。

附件2099v11edc0s000cc2eccecd0d.rar

1.45 MB

下载  售价: 100 积分    赚积分

相关帖子

回复

使用道具 举报

您需要登录后才可以回帖 登录 | 立即注册

本版积分规则

QQ|联系我们|豆豆网 ( 苏ICP备20004746号-1 )

GMT+8, 2025-12-27 23:13 , Processed in 0.032575 second(s), 27 queries .

本站所有内容均由网友自主分享,如有侵权内容或者违法行为,请及时联系站长删除,本站将根据实际情况进行积分奖励!请查看:免责声明

快速回复 返回顶部 返回列表