豆豆网

 找回密码
 立即注册

QQ登录

只需一步,快速开始

查看: 3582|回复: 0

一份高层住宅楼给排水设计CAD施工图纸

[复制链接]

0

主题

0

帖子

1485

积分

超级版主

Rank: 8Rank: 8

积分
1485
发表于 2020-2-16 15:20:20 | 显示全部楼层 |阅读模式

该帖子包含附件可供参考学习和下载,您可以 搜索 更多您想要的资源


  • 附件设计说明:有
  • 建筑类别:住宅
  • 建筑高度类型:高层建筑
  • 建筑地上层数:33层
  • 建筑地下层数:2层
  • 图纸设计深度:施工图
  • 参考图纸:19张
  • 设计年代:近代
  • 地下室用途:人防,车库,设备用房
  • 生活供水设计:生活给水系统
  • 排水设计:污水系统,废水系统,雨水系统,机房排水
  • 消防设计:室内消火栓系统,喷淋系统,灭火器配置系统
  • 供水设备:高位水箱,水泵站,稳压泵
  • 供水方式:市政供水,变频供水,分区供水
  • 供水分区:四区
  • 排水技术:重力排水
  • 火灾危险等级:中危险级Ⅰ级
  • 消火栓用水量室外(L/S):15
  • 消火栓用水量室内(L/S):20
  • 项目所在地:河南

附件详情

  • 无资料目录

附件详情

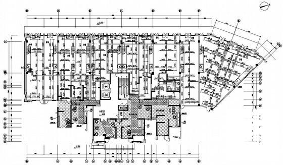
资料介绍:该项目某村改造项目楼。本建筑地上33层,裙房二层,地下二层。地下一层、二层为车库及设备站房。地下二层局部战时为人防地下室,本建筑属于一类高层住宅楼。

设计内容:生活给水系统、污水排水系统、雨水和空调冷凝水系统、 消防系统 、消火栓消防给水系统、灭火器配置系统。

,图纸共19张。

标准层户型给排水平面放大图

主楼空调冷凝水及阳台雨水管道系统原理图

主楼排水管道系统原理图

第 1 张图
第 1 张图
第 2 张图
第 2 张图
第 3 张图
第 3 张图
第 4 张图
第 4 张图
以上是部分图纸截图,有些图框没有放大后再截图,可能截图里不清晰或者看不到内容,您可以在下载后查看具体内容

温馨提示:该资料由网友于2020-2-16 15:20:20上传分享,您可以下载该资料进行学习和参考,如有侵权内容或者违法行为,请及时联系站长删除,如有疑问,您可以在给水排水专区发帖交流相关知识。

附件2099v11edew2wfefescc200c1s.rar

1.73 MB

下载  售价: 100 积分    赚积分

相关帖子

回复

使用道具 举报

您需要登录后才可以回帖 登录 | 立即注册

本版积分规则

QQ|联系我们|豆豆网 ( 苏ICP备20004746号-1 )

GMT+8, 2025-11-3 17:41 , Processed in 0.013652 second(s), 27 queries .

本站所有内容均由网友自主分享,如有侵权内容或者违法行为,请及时联系站长删除,本站将根据实际情况进行积分奖励!请查看:免责声明

快速回复 返回顶部 返回列表