豆豆网

 找回密码
 立即注册

QQ登录

只需一步,快速开始

查看: 2508|回复: 0

一份3万平地下停车库给排水CAD图纸

[复制链接]

0

主题

0

帖子

1322

积分

超级版主

Rank: 8Rank: 8

积分
1322
发表于 2020-2-16 13:20:07 | 显示全部楼层 |阅读模式

该帖子包含附件可供参考学习和下载,您可以 搜索 更多您想要的资源


  • 附件设计说明:有

附件详情

  • 总平面图
  • 地下汽车库(非人防区部分)
  • 给排水设计说明
  • 地下车库给排水平面图
  • 地下车库喷淋平面图
  • 剖面图
  • 泵房预留套管和尺寸定位图
  • 集水坑详图
  • 水泵房主要设备材料表
  • 水泵房详图
  • 泵房预留套管和尺寸定位图
  • 地下汽车库(人防区部分)
  • 人防设计说明及图例
  • 防护单元战时给水系统展开图
  • 材料表
  • 战时地下车库集水坑排水管道系统图
  • 地下汽车库(人防区)战时平面图
  • 地下汽车库(人防区)平时平面图
  • 地下汽车库(人防区)平时喷淋平面图
  • 地下汽车库(人防区)消火栓系统图
  • 地下车库集水坑排水管道系统图

附件详情

该项目位于安徽,地下汽车库总建筑面积30000平方米,平时功能为小汽车停车库和非机动车库, 本人防地下室共8个防护单元,每个防护单元掩蔽人数见说明列表。地下室防护单元平时为地下停车库,为常6级乙类战时二等人员掩蔽部。
给排水附件设计说明:生活给水系统:生活用水水源为市政管网。排水系统:排水采用污废合流制。地下室积水汇入集水坑后经污水泵提升至室外。 消防系统 由于当地市政给水管网能够满足室外消防用水量,因而消防水池中不考虑室外消防用水量。自喷系统按中危级设置喷洒系统。
,共17张图。

地下汽车库(人防区)平时平面图

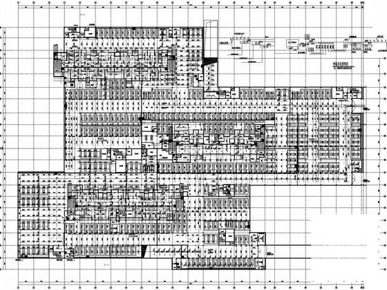
地下车库给排水平面图

地下车库消火栓系统透视图

地下车库喷淋平面图

第 1 张图
第 1 张图
第 2 张图
第 2 张图
第 3 张图
第 3 张图
第 4 张图
第 4 张图
第 5 张图
第 5 张图
以上是部分图纸截图,有些图框没有放大后再截图,可能截图里不清晰或者看不到内容,您可以在下载后查看具体内容

温馨提示:该资料由网友于2020-2-16 13:20:07上传分享,您可以下载该资料进行学习和参考,如有侵权内容或者违法行为,请及时联系站长删除,如有疑问,您可以在给水排水专区发帖交流相关知识。

附件2099v11edc00cfce0dcc1cedff.rar

3.43 MB

下载  售价: 100 积分    赚积分

相关帖子

回复

使用道具 举报

您需要登录后才可以回帖 登录 | 立即注册

本版积分规则

QQ|联系我们|豆豆网 ( 苏ICP备20004746号-1 )

GMT+8, 2025-12-28 00:43 , Processed in 0.017852 second(s), 27 queries .

本站所有内容均由网友自主分享,如有侵权内容或者违法行为,请及时联系站长删除,本站将根据实际情况进行积分奖励!请查看:免责声明

快速回复 返回顶部 返回列表