豆豆网

 找回密码
 立即注册

QQ登录

只需一步,快速开始

查看: 2754|回复: 0

一份高层公寓楼给排水及消防设计CAD施工图纸(自动喷淋)(卫生间大样图)

[复制链接]

0

主题

0

帖子

1112

积分

超级版主

Rank: 8Rank: 8

积分
1112
发表于 2020-2-16 15:20:54 | 显示全部楼层 |阅读模式

该帖子包含附件可供参考学习和下载,您可以 搜索 更多您想要的资源


  • 附件设计说明:无
  • 建筑类别:住宅
  • 建筑高度类型:高层建筑
  • 设计年代:近代
  • 排水设计:污水系统
  • 消防设计:室外消火栓系统
  • 项目所在地:河南

附件详情

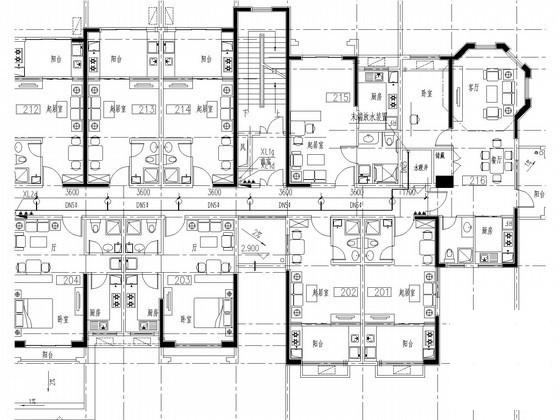
  • 给排水消防平面图
  • 自动喷淋平面图
  • 给水系统展开图
  • 排水系统展开图
  • 消火栓系统展开图
  • 卫生间大样图

附件详情

一、项目概要:
该项目地处郑州市北三环及电厂路交汇处,为一类高层民用建筑,地下室为储藏间,一层为商铺,二层及以上为公寓
二、系统:
生活给水系统
生活污水系统
消火栓给水系统
自动喷淋灭火系统
灭火器装置。
,共20张。

排水系统展开图

卫生间平面图及给排水系统展开图

消火栓自动喷淋系统展开图

公寓自动喷淋 - 1
第 1 张图
公寓自动喷淋 - 2
第 2 张图
公寓自动喷淋 - 3
第 3 张图
公寓自动喷淋 - 4
第 4 张图
以上是部分图纸截图,有些图框没有放大后再截图,可能截图里不清晰或者看不到内容,您可以在下载后查看具体内容

温馨提示:该资料由网友于2020-2-16 15:20:54上传分享,您可以下载该资料进行学习和参考,如有侵权内容或者违法行为,请及时联系站长删除,如有疑问,您可以在给水排水专区发帖交流相关知识。

附件2099v11edew2ddfw2weccc0fff.rar

1.86 MB

下载  售价: 100 积分    赚积分

公寓自动喷淋相关帖子

回复

使用道具 举报

您需要登录后才可以回帖 登录 | 立即注册

本版积分规则

QQ|联系我们|豆豆网 ( 苏ICP备20004746号-1 )

GMT+8, 2025-12-28 11:19 , Processed in 0.016277 second(s), 27 queries .

本站所有内容均由网友自主分享,如有侵权内容或者违法行为,请及时联系站长删除,本站将根据实际情况进行积分奖励!请查看:免责声明

快速回复 返回顶部 返回列表