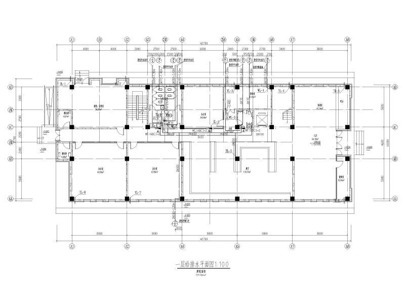
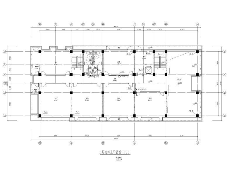
4层办公楼给排水设计施工CAD大样图
- 发布时间:2021-05-13
- 评论次数:0
- 浏览次数:0
- 文件大小:1.3 MB
- 收藏次数:0
- 
								文件名称: 附件-996059070995986067.zip 附件-996059070995986067.zip
								办公楼给排水设计下载
							
						- 6层办公楼给排水设计CAD施工大样图.dwg
- 6层办公楼给排水设计CAD施工大样图.dwg
- 10层办公楼给排水整改设计CAD施工大样图.dwg
- 实验用科研办公楼给排水设计CAD施工大样图.dwg
- 2层科技公司办公楼消防给排水设计施工CAD大样图
- 3层办公楼给排水消防系统设计施工CAD大样图
- 3层办公楼给排水设计施工CAD大样图
- 多层办公楼给排水消防系统设计施工CAD大样图
- 6层办公楼给排水消防系统设计施工CAD大样图
- 办公楼采暖给排水设计CAD图纸(卫生间大样图)
- 3层综合办公楼给排水CAD施工大样图(dwg)
- 5层办公楼建筑给排水CAD施工大样图
- 12层办公楼强给排水施工CAD大样图
- 办公楼给排水施工设计分析.doc
- 3层办公楼给排水设计CAD施工大样图(带计算书).dwg
- 4层办公楼采暖、给排水CAD施工大样图(设计说明).dwg
- 办公楼给排水消防施工图设计(气体灭火),平面图,大样图,系统图
- 研发办公楼给排水施工设计cad图纸和消防给排水专业图纸
- 小型办公楼给排水系统设计施工图纸和办公楼卫生间cad大样图
- [CAD]7层办公楼给排水大样图(消火栓系统图).dwg
全部评论
						
							评论网友评论仅友表达个人看法,并不表明本站同意其观点,不得发布违反法律法规的内容!
						
						
 
	              	 
	              	 
	              	 
	              	 
	              	