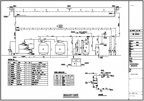
国内会所游泳池水处理工程CAD图纸
- 发布时间:2021-05-15
- 评论次数:0
- 浏览次数:0
- 文件大小:0.26 MB
- 收藏次数:0
-
文件名称:
附件-995860876658555080965.rar
游泳池水处理工程下载
- 一份会所游泳馆游泳池CAD图纸(水处理)
- 会所游泳池水处理工程设计施工CAD图纸
- 国际会所室内游泳池水处理系统设计施工CAD大样图
- [CAD]游泳池设计图纸(游泳池水处理).dwg
- 游泳池水处理流程CAD图纸(dwg)
- 游泳池水处理流程CAD图纸
- 中学游泳池水处理工程
- 水处理游泳池设备全套CAD图纸
- 游泳池循环水处理CAD图纸
- 国际会所室内游泳池水处理系统设计CAD大样图(三集一体除湿热泵)(dwg)
- 国内商业中心中水处理CAD图纸(dwg)
- 一份高档别墅会所室内游泳池CAD施工图纸
- 会所游泳池锅炉房CAD施工图纸
- 会所游泳池工程给排水设计CAD施工图纸
- 会所室内游泳池给排水设计CAD施工图纸(ppr热水管)
- 一份会所室内游泳池水电CAD图纸(安装大样图)
- 小区会所游泳池区结构CAD施工大样图(dwg)(桩基础)
- 会所游泳池结构图纸(梁平法CAD施工图)(dwg)
- 下1层会所室内游泳池循环水系统设计CAD图纸(dwg)
- 会所室内游泳池给排水CAD施工图纸(ppr热水管)(dwg)
全部评论
评论网友评论仅友表达个人看法,并不表明本站同意其观点,不得发布违反法律法规的内容!
