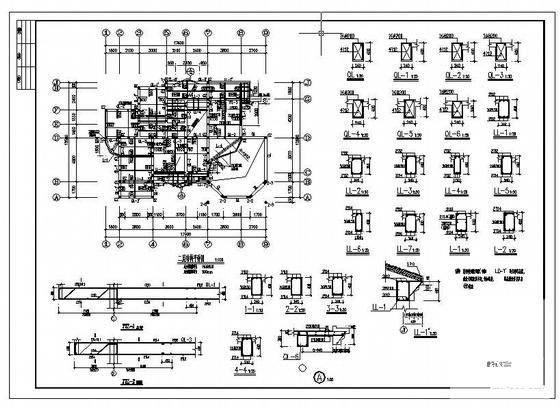
7度3层别墅建筑结构全套施工CAD图纸
- 发布时间:2021-05-02
- 评论次数:0
- 浏览次数:0
- 文件大小:1.09 MB
- 收藏次数:0
-
文件名称:
附件-995879897550878007758.rar
建筑结构施工图纸下载
- 单家独院式别墅全套施工图纸_建筑结构水电图纸_平面图_cad
- 乡村别墅建筑结构CAD图纸
- 别墅建筑结构CAD图纸(dwg)
- 欧陆风格独栋别墅全套施工图(建筑结构水电),平面图,剖面图,立面图
- 单家独院式别墅全套施工图(建筑结构水电图),平面图,剖面图,立面图
- 二层框架结构美丽乡村别墅全套施工图(建筑结构水暖电),平面图,立面图
- 3层别墅建筑结构CAD施工图纸
- 别墅建筑结构CAD施工图纸
- 大型别墅建筑结构CAD施工图纸
- 3层别墅建筑结构CAD施工图纸
- 3层别墅建筑结构CAD施工图纸
- 别墅建筑结构CAD施工图纸
- 3层别墅建筑结构CAD施工图纸
- [结构总说明]别墅建筑结构CAD图纸
- 休闲别墅建筑结构CAD施工图纸
- 度假区别墅建筑结构CAD施工图纸
- 一份别墅建筑结构CAD图纸
- 砖混别墅建筑结构CAD图纸(dwg)
- 3层别墅建筑结构CAD图纸(dwg)
- 3层别墅建筑结构施工CAD图纸
全部评论
评论网友评论仅友表达个人看法,并不表明本站同意其观点,不得发布违反法律法规的内容!
