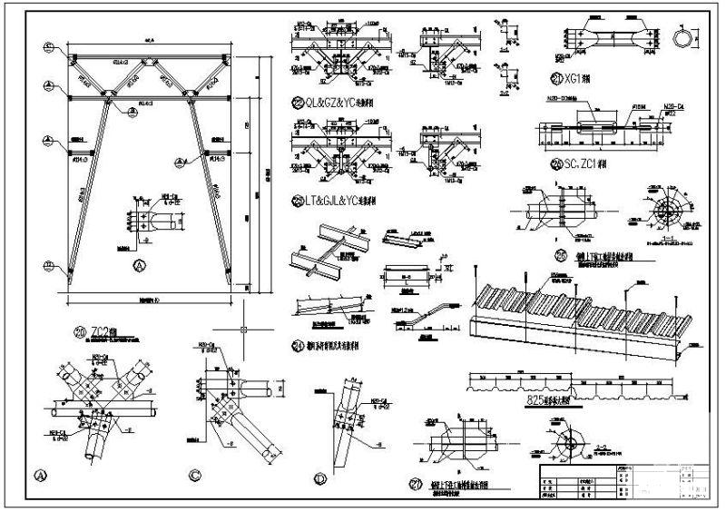
两层陶瓷公司钢结构厂房结构设计施工CAD图纸
- 发布时间:2021-05-03
- 评论次数:0
- 浏览次数:0
- 文件大小:1.31 MB
- 收藏次数:0
-
文件名称:
附件-995878706896875786797.rar
两层钢结构设计图纸下载
- 两层钢结构厂房设计CAD图纸
- 两层钢结构科研楼CAD图纸(dwg)
- 两层钢结构车间CAD图纸(建筑设计说明)(dwg)
- 两层轻钢结构厂房结构设计CAD施工图纸
- 两层钢结构厂房结构设计施工CAD图纸(独立基础)
- 两层钢结构骨架别墅建筑结构CAD施工图纸
- 两层钢结构别墅结构CAD施工图纸(建施)
- 一份两层轻钢结构厂房结构CAD施工图纸
- 一份两层钢结构别墅结构CAD施工图纸(建施)
- 一份两层钢结构厂房CAD图纸
- 两层钢结构厂房刚架节点CAD详图纸(dwg)
- 770平米两层钢结构科研楼建筑结构CAD图纸
- 两层轻钢结构工作室幕墙工程CAD施工图纸
- [CAD]两层钢结构巴浮法玻璃原料站建筑方案设计图纸(高19米)
- 一份两层钢结构厂房结构设计方案CAD图纸
- 两层钢结构4s店结构设计CAD施工图纸
- 新增两层钢结构售楼处设计CAD施工图纸(dwg)(条形基础)
- 两层大厦钢结构售楼处建筑结构设计CAD施工图纸
- 24米跨两层钢结构厂房部分结构设计CAD施工图纸
- 两层钢结构维修店结构CAD施工图纸(建筑CAD施工图纸)
全部评论
评论网友评论仅友表达个人看法,并不表明本站同意其观点,不得发布违反法律法规的内容!
