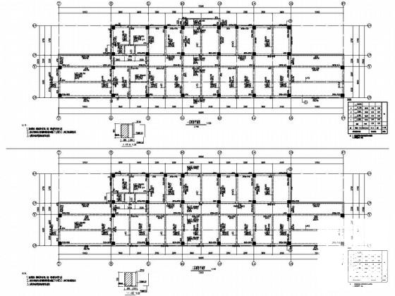
地上3层框架结构行政楼结构设计施工CAD大样图
- 发布时间:2021-05-08
- 评论次数:0
- 浏览次数:0
- 文件大小:5.9 MB
- 收藏次数:0
- 
								文件名称: 附件-995888596859959955850.rar 附件-995888596859959955850.rar
								行政楼设计下载
							
						- 地上5层框架结构行政楼结构设计施工CAD图纸
- 地上3层框架结构行政楼结构CAD施工大样图(dwg)(丙级条形基础)
- 地上3层框架结构旅馆结构设计施工CAD大样图
- 地上5层框架结构教学楼结构设计施工CAD大样图
- 地上3层框架结构教学楼结构设计施工CAD大样图
- 地上7层框架结构住宅楼结构设计施工CAD大样图
- 地上2层框架结构办公楼结构设计施工CAD大样图
- 地上6层框架结构科研楼结构设计施工CAD大样图
- 地上4层框架结构教学综合楼结构设计施工CAD大样图
- 地上6层框架结构商业楼结构设计施工CAD大样图
- 4层框架结构行政楼结构设计CAD施工图纸
- 6层框架结构行政楼结构设计施工CAD图纸
- 地上12层框架结构办公楼结构设计施工CAD图纸
- 地上2层框架结构综合楼结构设计施工CAD图纸
- 地上5层框架结构住院楼结构设计施工CAD图纸
- 地上3层框架结构办公楼结构设计施工CAD图纸
- 地上3层框架结构商贸楼结构设计施工CAD图纸
- 地上7层框架结构公寓楼结构设计施工CAD图纸
- 地上6层框架结构办公楼结构设计施工CAD图纸
- 地上2层框架结构商业楼结构设计施工CAD图纸
全部评论
						
							评论网友评论仅友表达个人看法,并不表明本站同意其观点,不得发布违反法律法规的内容!
						
						
 
	              	 
	              	 
	              	