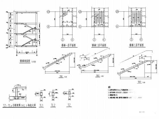
3层框架结构疾控中心业务楼结构设计施工CAD大样图
- 发布时间:2021-05-09
- 评论次数:0
- 浏览次数:0
- 文件大小:2.06 MB
- 收藏次数:0
-
文件名称:
附件-995887789977778875885.rar
疾控中心设计下载
- 3层框架结构疾控中心业务楼结构CAD施工大样图(dwg)(丙级独立基础)
- 5层市级疾控中心业务楼给排水CAD施工图纸(dwg)
- 疾控中心业务楼玻璃幕墙工程专项施工方案.doc
- 多层疾控中心框架结构施工图2023
- 一份5层市级疾控中心业务楼给排水CAD施工图纸(室内消火栓)
- 高层框架结构医院疾控中心结构施工大样图cad平面布置图
- 国税综合业务楼结构设计.pdf
- 疾控中心建筑+装修施工图
- 框架结构综合业务楼总承包施工组织设计.doc
- 国内电视中心综合业务楼结构设计.pdf
- 国内网通公司综合业务楼结构设计.pdf
- 大学26层框架基地业务楼结构设计计算书.doc
- ]钢混框架结构综合业务楼施工组织设计,平面布置图
- 框架结构商贸楼结构设计CAD施工大样图.dwg
- 框架结构庄园别墅结构设计CAD施工大样图.dwg
- 3层钢框架结构厂房结构设计施工CAD大样图
- 框架结构电子公司厂房结构设计施工CAD大样图
- 文化园框架结构餐厅结构设计施工CAD大样图
- 地下1层框架结构车库结构设计施工CAD大样图
- 3层框架结构钟楼结构设计施工CAD大样图
全部评论
评论网友评论仅友表达个人看法,并不表明本站同意其观点,不得发布违反法律法规的内容!
