豆豆网

 找回密码
 立即注册

QQ登录

只需一步,快速开始

查看: 2462|回复: 0

一份5层市级疾控中心业务楼给排水CAD施工图纸(室内消火栓)

[复制链接]

0

主题

0

帖子

1094

积分

超级版主

Rank: 8Rank: 8

积分
1094
发表于 2020-2-16 11:33:04 | 显示全部楼层 |阅读模式

该帖子包含附件可供参考学习和下载,您可以 搜索 更多您想要的资源


  • 附件设计说明:有
  • 建筑类别:办公,医疗
  • 建筑高度类型:多层建筑
  • 建筑设计结构形式:钢筋混凝土结构
  • 建筑地上层数:5层
  • 建筑地下层数:1层
  • 图纸设计深度:施工图
  • 参考图纸:14张
  • 设计年代:近代
  • 地下室用途:车库,设备用房
  • 生活供水设计:生活给水系统
  • 排水设计:污水系统,废水系统
  • 消防设计:室内消火栓系统,灭火器配置系统
  • 供水设备:高位水箱,水泵站,水池
  • 供水方式:市政供水,变频供水,高位水箱供水
  • 排水体制:污废合流
  • 排水技术:重力排水
  • 消火栓用水量室外(L/S):20
  • 消火栓用水量室内(L/S):15
  • 大样节点:卫生间,集水坑
  • 项目所在地:河北

附件详情

  • 设计及施工说明
  • 资料目录
  • 标准图集选用目录
  • 一区地下层给水排水平面图
  • 主要材料设备表
  • 一区底层给水排水平面图
  • 一区二层给水排水平面图
  • 一区三层给水排水平面图
  • 一区四层给水排水平面图
  • 一区五层给水排水平面图
  • 一区屋顶给水排水平面图
  • 水箱层给水排水平面图
  • 二区底层给水排水平面图
  • 二区二层给水排水平面图
  • 二区三层给水排水平面图
  • 二区四层给水排水平面图
  • 二区五层给水排水平面图
  • 二区屋顶给水排水平面图
  • 卫生间给水排水平面详图
  • 卫生间给水排水支管系统图
  • 给水排水立管系统图
  • 室内消火栓管道系统图

附件详情

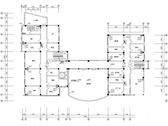
该项目位于河北,为市级疾控中心业务楼工程,共五层楼,分为两个区。设计范围:本综合楼建筑给水排水系统、消火栓系统及室内灭火器设置等设计。给水系统:水源为市政自来水,系统形式采用下行上给直接供水方式。排水系统:系统采用单立管排水方式,伸顶通气管,室内卫生间污、废水合流,排水入室外沼气化粪池,经化粪池处理后再排入市政污水管。室外消火栓用水由市政消火栓供给。室内消火栓的布置保证两股充实水柱同时到达室内任何部位,屋顶设试验消火栓。
,共14张图。

一区五层给水排水平面图

室内消火栓管道系统图

卫生间(A)给水排水平面详图

疾控中心施工图 - 1
第 1 张图
疾控中心施工图 - 2
第 2 张图
疾控中心施工图 - 3
第 3 张图
疾控中心施工图 - 4
第 4 张图
以上是部分图纸截图,有些图框没有放大后再截图,可能截图里不清晰或者看不到内容,您可以在下载后查看具体内容

温馨提示:该资料由网友于2020-2-16 11:33:04上传分享,您可以下载该资料进行学习和参考,如有侵权内容或者违法行为,请及时联系站长删除,如有疑问,您可以在给水排水专区发帖交流相关知识。

附件2099v11edc01c0wfff2ecf1e0c.rar

623.79 KB

下载  售价: 100 积分    赚积分

疾控中心施工图相关帖子

回复

使用道具 举报

您需要登录后才可以回帖 登录 | 立即注册

本版积分规则

QQ|联系我们|豆豆网 ( 苏ICP备20004746号-1 )

GMT+8, 2025-11-16 11:46 , Processed in 0.032242 second(s), 27 queries .

本站所有内容均由网友自主分享,如有侵权内容或者违法行为,请及时联系站长删除,本站将根据实际情况进行积分奖励!请查看:免责声明

快速回复 返回顶部 返回列表