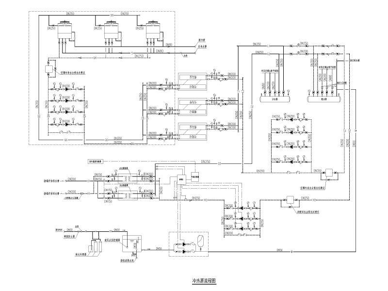
制冷机房_冷热源系统暖通施工CAD图纸
- 发布时间:2021-05-12
- 评论次数:0
- 浏览次数:0
- 文件大小:1.08 MB
- 收藏次数:0
-
文件名称:
附件-996977098878096976.dwg
机房施工图纸下载
- 制冷机房暖通CAD图纸
- 制冷机房冷热源设计计算书.pdf
- 医院水蓄冷制冷机房设计CAD图纸(空调水系统)(dwg)
- 制冷机房空调设计CAD施工大样图(冰蓄冷系统、冷却塔系统)(dwg)
- 32万平米医院水蓄冷制冷机房设计CAD图纸
- 空调冷热源机房及相关暖通设计CAD施工图纸(dwg)
- 一份4层商业广场空调通风系统设计CAD施工图纸(制冷机房冷热源系统)
- 旅馆空调系统制冷机房CAD图纸(dwg)
- 大型制冷机房设计图纸(系统图).
- 常规式和冰蓄冷制冷系统CAD施工图纸
- 制冷机房、新风机房大样CAD图纸
- 综合商场冷热源机房系统设计CAD施工图纸(dwg)
- 两层综合商场冷热源机房系统设计施工CAD图纸
- 高层酒店建筑暖通空调全系统设计施工图(制冷机房),平面图,大样图
- 6000平米冰蓄冷空调机房工程系统设计施工CAD图纸
- 游泳馆暖通设计cad图纸_冷热源、空调系统、通风系统
- 13层大型酒店空调通风系统设计CAD施工图纸(制冷机房)(dwg)
- [分享]冷库机房部分设计dwg格式CAD施工图纸(制冷系统)
- 制冷机房布置平面CAD施工图纸(dwg)
- 大厦制冷机房设计CAD施工图纸.dwg
全部评论
评论网友评论仅友表达个人看法,并不表明本站同意其观点,不得发布违反法律法规的内容!
