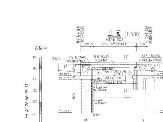
1×20m装配式预应力混凝土箱梁桥施工图cad构造图及圆管涵平立面
- 发布时间:2021-05-25
- 评论次数:0
- 浏览次数:0
- 文件大小:4.24 MB
- 收藏次数:0
-
文件名称:
附件-995788985079767655.rar
装配式预应力箱梁桥施工图下载
- 装配式预应力混凝土箱型梁桥毕业设计方案.doc
- [预应力连续箱梁]硕士预应力混凝土连续箱梁桥计算
- 装配式预应力混凝土T梁桥_预应力桥_cad
- 1×20m装配式预应力混凝土箱梁桥CAD施工图纸(涵洞).dwg
- 装配式简支箱梁桥及箱型连续梁桥架设方案.doc
- 预应力混凝土简支箱形梁桥.doc
- 预应力混凝土简支箱梁桥施工.doc
- 装配式预应力混凝土T形连续梁桥施工图纸cad
- 装配式组合箱梁连续梁桥通用图(66套),构造图
- 预应力连续箱梁桥CAD施工图纸65张(桩基础).dwg
- 预应力混凝土连续箱梁桥CAD施工图纸65张(花瓶墩).dwg
- 等截面预应力混凝土连续箱梁桥施工图CAD
- 等截面预应力混凝土箱梁桥系梁施工方案2021.doc
- 25m装配式预应力混凝土箱梁通用CAD图纸58张
- 30米预应力砼装配式箱梁预制施工技术方案
- 装配式预应力混凝土T梁桥支座构造CAD图纸(dwg)
- 装配式预应力混凝土T梁桥(先简支后结构连续)cad
- 装配式预应力混凝土连续T梁桥通用cad图纸设计
- 4×30m装配式预应力混凝土简支T梁桥施工图设计cad
- 装配式预应力混凝土小箱梁桥施工图PDF217张.pdf
全部评论
评论网友评论仅友表达个人看法,并不表明本站同意其观点,不得发布违反法律法规的内容!
