豆豆网

 找回密码
 立即注册

QQ登录

只需一步,快速开始

查看: 2094|回复: 0

一份地上26层住宅楼建筑电气强弱电CAD施工图纸(地下1层)(火灾自动报警系统)

[复制链接]

0

主题

0

帖子

1579

积分

超级版主

Rank: 8Rank: 8

积分
1579
发表于 2020-2-17 20:11:02 | 显示全部楼层 |阅读模式

该帖子包含附件可供参考学习和下载,您可以 搜索 更多您想要的资源


  • 建筑类别:住宅
  • 建筑高度类型:高层建筑
  • 建筑设计面积:21893.77平方米
  • 建筑地上层数:26层
  • 建筑地下层数:1层
  • 图纸设计深度:施工图
  • 设计年代:近代
  • 地下室用途:车库,设备用房
  • 接地方式:TN-S
  • 项目所在地:广东
  • 强电设计:供配电系统,配变电所,低压配电,电气照明,建筑物防雷,接地安全
  • 弱电设计: 火灾自动报警系统

附件详情

  • 1、电气说明;
  • 2、建筑防雷说明;
  • 3、总等电位联结说明;
  • 4、火灾自动报警系统设计说明 ;
  • 5、10KV高压配电系统图;
  • 6、低压配电系统图;
  • 7、低压竖向干线图;
  • 8、配电箱系统图;
  • 9、动力配电/设备房布置平面图;
  • 10、照明平面图;
  • 11、消防平面图;
  • 12、有线电视系统/电话网络系统;
  • 13、普通数码可视楼宇对讲系统;
  • 14、 弱电平面图
  • 15、 防雷平面图

附件详情

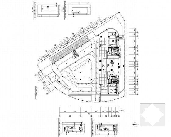
该附件为[广东]一类高层住宅建筑电气全套强弱电施工图,共56张。
项目概况:建筑面积:(21893.77)平方米, 地下室建筑面积(1882.94)平方米。建筑层数:主楼(26)层,建筑高度(98.6)m ,地下(1)层。
设计内容:供配电系统;照明系统;防雷、接地系统;防火剩余电流动作报警系统;有线电视系统;电话宽带系统;计算机网络系统;楼宇自动控制系统;安全技术防范系统;火灾自动报警系统。

低压竖向干线图

动力配电 设备房布置平面图

照明平面图

有线电视系统图

配电箱系统图

第 1 张图
第 1 张图
第 2 张图
第 2 张图
第 3 张图
第 3 张图
第 4 张图
第 4 张图
第 5 张图
第 5 张图
第 6 张图
第 6 张图
以上是部分图纸截图,有些图框没有放大后再截图,可能截图里不清晰或者看不到内容,您可以在下载后查看具体内容

温馨提示:该资料由网友于2020-2-17 20:11:02上传分享,您可以下载该资料进行学习和参考,如有侵权内容或者违法行为,请及时联系站长删除,如有疑问,您可以在电气工程专区发帖交流相关知识。

附件2099v11edecsws0c1wss21cfec.rar

3.53 MB

下载  售价: 100 积分    赚积分

相关帖子

回复

使用道具 举报

您需要登录后才可以回帖 登录 | 立即注册

本版积分规则

QQ|联系我们|豆豆网 ( 苏ICP备20004746号-1 )

GMT+8, 2025-12-28 02:42 , Processed in 0.015287 second(s), 27 queries .

本站所有内容均由网友自主分享,如有侵权内容或者违法行为,请及时联系站长删除,本站将根据实际情况进行积分奖励!请查看:免责声明

快速回复 返回顶部 返回列表