豆豆网

 找回密码
 立即注册

QQ登录

只需一步,快速开始

查看: 2638|回复: 0

一份6层高校综合楼给排水CAD施工图纸(自动喷水灭火系统)

[复制链接]

0

主题

0

帖子

1642

积分

超级版主

Rank: 8Rank: 8

积分
1642
发表于 2020-2-18 08:53:10 | 显示全部楼层 |阅读模式

该帖子包含附件可供参考学习和下载,您可以 搜索 更多您想要的资源


  • 附件设计说明:有
  • 建筑类别:教育
  • 建筑高度类型:多层建筑
  • 建筑地上层数:6层
  • 图纸设计深度:施工图
  • 设计年代:近代
  • 生活供水设计:生活给水系统
  • 排水设计:污水系统,废水系统,雨水系统
  • 消防设计:室外消火栓系统,室内消火栓系统,干式灭火系统,灭火器配置系统
  • 供水设备:高位水箱
  • 供水方式:市政供水,变频供水
  • 排水体制:雨污分流
  • 大样节点:水箱
  • 项目所在地:湖南

附件详情

项目概要及设计范围
该项目地上6层。
设计内容包括:给水系统、排水系统、污废水系统、雨水系统、灭火器配置、消火栓系统、自动喷水灭火系统等内容。
(一)生活给水系统
给水水源引自校园给水管网,由市政给水直接提供,给水压力为 0.30MPa。
(二)生活污水系统
1、该项目室内排水采用雨污分流制,污水进室外化粪池后排至污水站,雨水直排至厂内雨水管网。
(三)雨水系统
1.屋面雨水、屋面天沟及较大的露台雨水设雨水斗排放,采用87型雨水斗或侧排式雨水斗;较小的露台雨水采用直立或侧排式地漏排放。
2.屋面雨水经雨水斗和室外雨水管排至室外明沟、室外雨水口或雨水检查井。
3.室外地面雨水经雨水口,由室外雨水管汇集,排至市政雨水管。
(四)消火栓给水系统
1、该项目室内消火栓用水量 15L/S;室外消火栓用水量 30L/S。
2、本栋楼由校区总消防给水引入两路进水管,本区域设室外地上式消火栓3套,室外消火栓的间距不大于120m,距路边不大于2m,距房屋外墙不小于5m,满足室外消防用水。
3、艺体中心设消防水池,水泵房内设消防加压泵,一用一备。
... ...

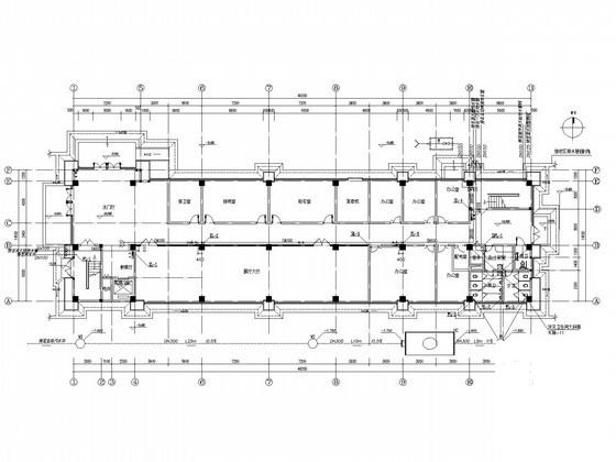
一层平面图

给排水系统图

高校综合楼 - 1
第 1 张图
高校综合楼 - 2
第 2 张图
高校综合楼 - 3
第 3 张图
以上是部分图纸截图,有些图框没有放大后再截图,可能截图里不清晰或者看不到内容,您可以在下载后查看具体内容

温馨提示:该资料由网友于2020-2-18 08:53:10上传分享,您可以下载该资料进行学习和参考,如有侵权内容或者违法行为,请及时联系站长删除,如有疑问,您可以在给水排水专区发帖交流相关知识。

附件2099v11edewcce02se1c1c200c.rar

1.23 MB

下载  售价: 100 积分    赚积分

高校综合楼相关帖子

回复

使用道具 举报

您需要登录后才可以回帖 登录 | 立即注册

本版积分规则

QQ|联系我们|豆豆网 ( 苏ICP备20004746号-1 )

GMT+8, 2025-12-27 04:15 , Processed in 0.014952 second(s), 27 queries .

本站所有内容均由网友自主分享,如有侵权内容或者违法行为,请及时联系站长删除,本站将根据实际情况进行积分奖励!请查看:免责声明

快速回复 返回顶部 返回列表