豆豆网

 找回密码
 立即注册

QQ登录

只需一步,快速开始

查看: 1554|回复: 0

大型小区11层住宅楼建筑施工CAD图纸

[复制链接]

0

主题

0

帖子

1470

积分

超级版主

Rank: 8Rank: 8

积分
1470
发表于 2020-1-23 23:35:47 | 显示全部楼层 |阅读模式

该帖子包含附件可供参考学习和下载,您可以 搜索 更多您想要的资源


  • 住宅类型(型体):板式
  • 商业:无
  • 建筑高度类型:高层建筑
  • 建筑设计结构形式:钢筋混凝土结构
  • 钢筋混凝土结构:框架
  • 图纸设计深度:施工图
  • 项目所在地:浙江
  • 图纸设计风格:欧陆风格
  • 图纸设计流派:新古典
  • 图纸设计格式:天正建筑CAD 7.0,CAD2000
  • 参考图纸:12张
  • 建筑设计面积:地上:6550平方米
  • 占地面积:592平方米
  • 建筑高度:32.6 m
  • 地上层数:11层
  • 设计效果图:无

附件详情

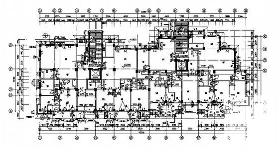
这份参考资料为温州某小区十一层住宅楼 建筑施工 图(6#楼)
总建筑设计面积:地上:6550平方米,建筑设计结构形式:框架结构,层数:11层,建筑高度:32.6 米
这份参考资料包括资料目录、设计说明、工程作法、门窗表、门窗详图、 楼梯详图 、各层建筑平面图、立面、剖面图、卫生间详图、阳台详图、墙身大样、檐口作法等,共12张图纸
设计功能包括:客厅、餐厅、厨房、书房、主卧、次卧等
这份参考资料与本网站发布的温州某小区六层住宅楼建筑施工图(1#楼)、温州某小区六层住宅楼建筑施工图(2#楼)、温州某小区十一层住宅楼建筑施工图(4#楼)、温州某小区十一层住宅楼建筑施工图(5#楼)、温州某小区十地下车库及人防部分建筑施工图(地下室)为同一小区建筑,可在网站成套施工图纸分类中参考其全部图纸,发布名称为温州某小 高层住宅 小区全套建筑施工图

2

2

3

3

4

第 1 张图
第 1 张图
第 2 张图
第 2 张图
第 3 张图
第 3 张图
第 4 张图
第 4 张图
以上是部分图纸截图,有些图框没有放大后再截图,可能截图里不清晰或者看不到内容,您可以在下载后查看具体内容

温馨提示:该资料由网友于2020-1-23 23:35:47上传分享,您可以下载该资料进行学习和参考,如有侵权内容或者违法行为,请及时联系站长删除,如有疑问,您可以在居住建筑专区发帖交流相关知识。

附件2099v11ed1w12sccee1s1sc102.rar

1.73 MB

下载  售价: 100 积分    赚积分

相关帖子

回复

使用道具 举报

您需要登录后才可以回帖 登录 | 立即注册

本版积分规则

QQ|联系我们|豆豆网 ( 苏ICP备20004746号-1 )

GMT+8, 2025-12-30 18:11 , Processed in 0.015152 second(s), 27 queries .

本站所有内容均由网友自主分享,如有侵权内容或者违法行为,请及时联系站长删除,本站将根据实际情况进行积分奖励!请查看:免责声明

快速回复 返回顶部 返回列表