豆豆网

 找回密码
 立即注册

QQ登录

只需一步,快速开始

查看: 2757|回复: 0

一份4层酒店强弱电CAD施工图纸(人防)

[复制链接]

0

主题

0

帖子

962

积分

超级版主

Rank: 8Rank: 8

积分
962
发表于 2020-2-18 10:14:14 | 显示全部楼层 |阅读模式

该帖子包含附件可供参考学习和下载,您可以 搜索 更多您想要的资源


  • 建筑类别:酒店

  • 建筑高度类型:多层建筑

  • 建筑设计面积:7554.06平方米

  • 建筑地上层数:4层

  • 建筑地下层数:2层

  • 图纸设计深度:施工图

  • 参考图纸:38张

  • 设计年代:近代

  • 地下室用途:人防,车库

  • 负荷等级:一级

  • 防雷等级:第二类

  • 接地方式:TN-C,TN-C-S

  • 项目所在地:浙江

  • 强电设计:低压配电,电气照明,建筑物防雷,接地安全

  • 弱电设计: 火灾自动报警系统

附件详情

  • 1、设计说明

  • 2、配电系统图

  • 3、楼层配电干线图

  • 4、消防报警系统图

  • 5、地下二层战时动力平面图

  • 6、地下二层人防通风信号平面图

  • 7、地下二层照明平面图

  • 8、地下二层平时动力平面图

  • 9、地下一层动力平面图

  • 10、二层照明平面图

  • 11、机房层电气平面图

  • 12、屋顶 防雷平面图

  • 13、基础接地平面图

  • 14、楼层配电干线图

  • 15、地下二层消防平面图

  • 16、四层消防平面图

  • 17、机房消防平面图

  • 18、地下一层 弱电平面图

  • 19、四层弱电平面图

附件详情

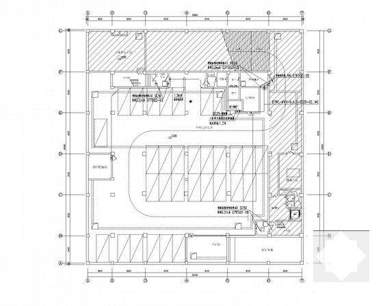
该附件为[浙江]酒店强弱电全套施工图纸(含人防),共38张。
该项目位于浙江,建筑建筑设计结构形式为框架结构;建筑层数:地下2层,地上4层。本项目总建筑面积7554.06平方米(其中地下室3039.28平方米);建筑高度:20.05米;建筑耐火等级等级:地上二级,地下一级。
设计范围:配电系统;照明系统;防雷保护、接地系统、火灾自动报警系统等等。
人防设计:人防工程内照明、电力配电、火灾自动报警系统。

三层弱电平面图

地下二层消防平面图

地下二层动力平面图

地下二层人防平面图

消防报警系统图

楼层配电干线图

配电系统图

第 1 张图
第 1 张图
第 2 张图
第 2 张图
第 3 张图
第 3 张图
第 4 张图
第 4 张图
第 5 张图
第 5 张图
第 6 张图
第 6 张图
以上是部分图纸截图,有些图框没有放大后再截图,可能截图里不清晰或者看不到内容,您可以在下载后查看具体内容

温馨提示:该资料由网友于2020-2-18 10:14:14上传分享,您可以下载该资料进行学习和参考,如有侵权内容或者违法行为,请及时联系站长删除,如有疑问,您可以在酒店建筑专区发帖交流相关知识。

附件2099v11edecdw1ecfds010f11c.rar

5.05 MB

下载  售价: 100 积分    赚积分

相关帖子

回复

使用道具 举报

您需要登录后才可以回帖 登录 | 立即注册

本版积分规则

QQ|联系我们|豆豆网 ( 苏ICP备20004746号-1 )

GMT+8, 2025-12-20 03:34 , Processed in 0.018519 second(s), 27 queries .

本站所有内容均由网友自主分享,如有侵权内容或者违法行为,请及时联系站长删除,本站将根据实际情况进行积分奖励!请查看:免责声明

快速回复 返回顶部 返回列表