豆豆网

 找回密码
 立即注册

QQ登录

只需一步,快速开始

查看: 3421|回复: 0

一份6层综合办公楼建筑给排水CAD施工图纸

[复制链接]

0

主题

0

帖子

1597

积分

超级版主

Rank: 8Rank: 8

积分
1597
发表于 2020-2-19 10:48:30 | 显示全部楼层 |阅读模式

该帖子包含附件可供参考学习和下载,您可以 搜索 更多您想要的资源


  • 附件设计说明:有
  • 建筑类别:办公
  • 建筑高度类型:多层建筑
  • 建筑设计结构形式:钢筋混凝土结构
  • 建筑地上层数:6层
  • 建筑地下层数:1层
  • 图纸设计深度:施工图
  • 设计年代:近代
  • 地下室用途:车库
  • 生活供水设计:生活给水系统
  • 排水设计:污水系统,废水系统,雨水系统
  • 消防设计:室外消火栓系统,室内消火栓系统,灭火器配置系统
  • 供水方式:市政供水
  • 供水分区:无
  • 排水体制:污废合流,雨污分流
  • 排水技术:重力排水
  • 火灾危险等级:轻危险级
  • 消火栓用水量室外(L/S):25
  • 消火栓用水量室内(L/S):15
  • 大样节点:泵房,卫生间
  • 项目所在地:广西

附件详情

  • 资料目录
  • 设计说明
  • 图例及主要设备材料表
  • 地下一层消火栓给排水平面图
  • 首层消火栓给排水平面图
  • 二层消火栓给排水平面图
  • 三层消火栓给排水平面图
  • 四~六层消火栓给排水平面图
  • 屋面排水平面图
  • 地下一层自喷平面图
  • 首层自喷平面图
  • 二层自喷平面图
  • 三层自喷平面图
  • 四~六层自喷平面图
  • 给排水平面及系统图一
  • 给排水平面及系统图二
  • 自喷原理图一
  • 消火栓给水原理图一
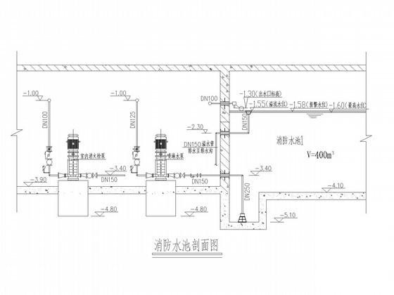
  • 消防水池剖面图
  • 泵房大样图
  • 泵房接管图
  • 自动喷淋系统原理图一

附件详情

项目概要:该项目位于广西,是综合办公楼建筑给排水项目,建筑层数为地上六层,地下一层;建筑高度23.1米;建筑类别为综合楼;
设计范围包括生活给排水系统: 生活给水系统、排水系统及空调冷凝水排放系统、消防给水系统: 消火栓消防给水系统、自动喷水灭火系统以及灭火器配置。
,共计18张图纸;


泵房大样图

消防水池剖面图

消火栓给水原理图

第 1 张图
第 1 张图
第 2 张图
第 2 张图
第 3 张图
第 3 张图
第 4 张图
第 4 张图
以上是部分图纸截图,有些图框没有放大后再截图,可能截图里不清晰或者看不到内容,您可以在下载后查看具体内容

温馨提示:该资料由网友于2020-2-19 10:48:30上传分享,您可以下载该资料进行学习和参考,如有侵权内容或者违法行为,请及时联系站长删除,如有疑问,您可以在给水排水专区发帖交流相关知识。

附件2099v11edc01dcc2fcecfc211e.rar

3.12 MB

下载  售价: 100 积分    赚积分

相关帖子

回复

使用道具 举报

您需要登录后才可以回帖 登录 | 立即注册

本版积分规则

QQ|联系我们|豆豆网 ( 苏ICP备20004746号-1 )

GMT+8, 2025-12-27 05:47 , Processed in 0.014392 second(s), 28 queries .

本站所有内容均由网友自主分享,如有侵权内容或者违法行为,请及时联系站长删除,本站将根据实际情况进行积分奖励!请查看:免责声明

快速回复 返回顶部 返回列表